绿城凤栖东方售楼处 首页 - 苏州绿城凤栖东方 - 环境 - 户型 - 价格 - 地址 - 楼盘详情 - 配套 - 电话 - 交房时间 - 配套 - 前台电话 -售楼处欢迎您
扫描到手机,新闻随时看
扫一扫,用手机看文章
更加方便分享给朋友
☎️☎️绿城凤栖东方售楼处电话:400-005-0788转接5555【已认证】
☎️☎️绿城凤栖东方售楼处位置:400-005-0788转接5555【售楼中心】
☎️☎️房价特价信息丨优惠政策丨详细解答丨在售房源丨在售户型图丨项目介绍丨
周边配套丨VR看房丨楼盘图丨沙盘图丨位置图丨配套图丨售楼处地址丨足不出户丨
绿城凤栖东方,即,苏地2025-WG-Z01号地块项目,位于吴中经开区郭巷街道东方大道东侧、正荣国领南侧,是2月26日,中电建以底价48681万元竞得,成交楼面价17902元/平。

项目的地块用途为商住混合用地,占地面积26660.2平,容积率1.02.
根据规划信息,项目拟建16栋住宅和1栋商业;
其住宅部分,16栋3-5F住宅,其中13栋3F联排、3栋5F叠墅。

1,该项目的容积率为1.02,这是纯低密的住宅社区;
2,该项目的产品为联排和叠墅,其中,以联排产品为主;
3,其项目的东侧为独墅湖,也是一线湖景低密豪宅社区了;
4,项目自带商业,可谓直接满足基本生活需求;
5,项目的住宅是不要求需要全装修交付的,但是鼓励为成品住宅;
6,住宅单套户型面积≥150平,这是终极改善;
7,项目总户数≤200户;

改善型的户型配置
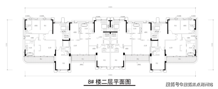
项目公示了8#、14#的户型标准层示意图。








位置不错!湖景+轨交
绿城凤栖东方的区位条件还是非常不错的,项目处于独墅湖西岸,板块目前还是比较成熟的。
周边界面来看,居住氛围也是比较浓的。
项目北侧是住宅小区正荣国领,东侧是独墅湖,南侧为独墅湖生态公园,西侧是东方大道。
从周边配套来看,中电建郭巷1号地块也是比较齐全的。
交通上,项目西面就是东方大道,不管是去往独墅湖高教区,还是去园区湖西都是比较方便的。独墅湖第二通道通车,也是一大助力。

☎️☎️绿城凤栖东方售楼处电话:400-005-0788转接5555【已认证】
☎️☎️绿城凤栖东方售楼处位置:400-005-0788转接5555【售楼中心】
☎️☎️房价特价信息丨优惠政策丨详细解答丨在售房源丨在售户型图丨项目介绍丨
周边配套丨VR看房丨楼盘图丨沙盘图丨位置图丨配套图丨售楼处地址丨足不出户丨
声明:本文由入驻焦点开放平台的作者撰写,除焦点官方账号外,观点仅代表作者本人,不代表焦点立场。
