[2025-武汉]福星惠誉铂雅府_网站首页_福星惠誉铂雅府_售楼处电话_房价_户型_楼盘详情
扫描到手机,新闻随时看
扫一扫,用手机看文章
更加方便分享给朋友
武汉福星惠誉·铂雅府售楼处电话▓:400-002-9578转接4444(售楼处已认证)
武汉福星惠誉·铂雅府营销中心电话▓:400-002-9578转接4444【营销中心】
温馨提示:售楼中心〢预约尊享1V1品鉴礼遇〢匠心钜制-恭迎品鉴〢
免责声明:本文所用信息图片来源于网络,如侵权请联系本网站及时删除
2024年,福星惠誉携全新产品系迭代而来,落子建设大道金融街,著极新一代城心高定产品系——全球首座铂雅府。
【项目概况】

开发商:福星惠誉控股有限公司
物业类别:普通住宅70年产权
物业公司:引入金钥匙国际联盟
【项目概览】
名称:福星惠誉·铂雅府
板块:汉口主城 江岸核心 建设大道 金融主轴
基因:“铂雅府系”城心高定产品系
产品类型:洋房、高层
即将加推3号楼
户型:103-135㎡,层高:54F
得房率:90-91%
🌿教育配套
配建武汉育才小学(新校区)
🌿商业配套
万象城商圈、菱角湖万达商圈、国广商圈、武汉天地商圈、西北湖商圈、CBD商圈6⃣大商圈环伺
『品牌观:城市中心立铂雅』
24载深耕履迹 引领城市人居焕新
武汉城市运营商 价值迭新驱动器
福星惠誉,立足本土,布局全国,实业为底,实干为基。始终以稳健的实力和担当,匠筑穿越时间周期的品质之作,成为城市更新与幸福生活服务商。
横向有建设大道、发展大道、解放大道三主干道,纵向有香港路、青年路、武汉大道等主干道,自驾到武汉三镇都很快捷;
直线距离约500米内,更是有3、6、7号线三地铁换乘的香港路站,公共交通出行同样便捷!

项目优势
教育资源:对口武汉市育才小学(新校区)及武汉六初,2025年9月新校区已开学。
交通便利:距地铁3/6/7号线香港路站约400米,自驾可通过建设大道、二环线等快速路连接武汉三镇。
产品特色:准四代住宅,得房率超90%,户型方正,赠送面积多,部分房源可优化为大横厅或功能型空间。
配套完善:自带约1.23万方商业,周边有万象城、菱角湖万达等商圈,医疗、公园资源丰富。
大区域内,商业、商务、公园、医疗、公共服务等顶级配置,名副其实的“汇聚一城繁华”。
商业方面,项目周边有武汉万象城、菱角湖万达广场、武汉天地壹方北馆、武汉新天地等知名商业,无论是接地气的、还是高大上的应有尽有;
商务方面,建设大道金融一条街,聚集着200多家金融机构,37家金融机构总部、集合了几乎武汉所有的中外资银行,还有多国领事馆、高级酒店和保险公司等;香港路沿线分布了香格里拉大酒店、浙商大厦为代表的写字楼群,同样是武汉的商务封面;
医疗方面,湖北省中西结合医院、长航总医院、武汉儿童医院、武汉市第六医院等均在项目附近,看病就医要多方便有多方便;
生态方面,解放公园、菱角湖公园、宝岛公园等即在周边,坐享城市繁华的同时,还能拥有城市级的生态景观;
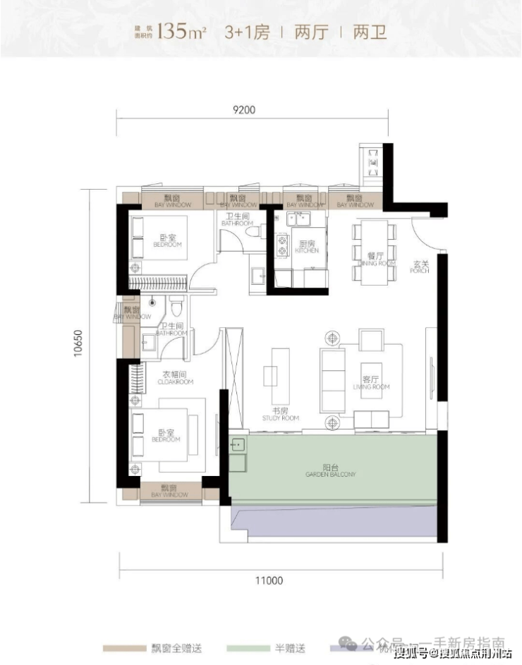
作为准四代住宅,该户型具有得房率高+设计灵活两大优势。
该户型南向大阳台+大花池,不仅拓展了室内空间,还大大提升了室内采光面,居住舒适度更上一层楼。



该户型为3号楼端头边户,南北通透,三开间朝南。
建面约135平,3+1房两厅两卫
该户型做到了三面空间可拓展,南向大阳台+大花池,提升了客餐厅的使用空间;5个飘窗可全优化,优化后房间整体更方正,空间感更强。



武汉福星惠誉·铂雅府售楼处电话▓:400-002-9578转接4444(售楼处已认证)
武汉福星惠誉·铂雅府营销中心电话▓:400-002-9578转接4444【营销中心】
温馨提示:售楼中心〢预约尊享1V1品鉴礼遇〢匠心钜制-恭迎品鉴〢
免责声明:本文所用信息图片来源于网络,如侵权请联系本网站及时删除
声明:本文由入驻焦点开放平台的作者撰写,除焦点官方账号外,观点仅代表作者本人,不代表焦点立场。
