温州时代滨江瑧品(售楼处)首页网站-销售中心(营销中心)楼盘欢迎您-小区环境-户型-价格-地址-楼盘详情-周边配套-售楼处电话-交房时间
扫描到手机,新闻随时看
扫一扫,用手机看文章
更加方便分享给朋友
温州时代滨江瑧品售楼处电话400-005-0788转接2222(已认证)
温州时代滨江瑧品营销中心电话400-005-0788转接2222【售楼中心】
温馨提示:网上售楼中心〢预约可享内部优惠〢匠心钜制-恭迎品鉴〢
免责声明:(本文章所用信息图片来源于网络,如有侵权请联系本网站及时删除)
温州时代滨江瑧品主力面积是建面约210㎡,最小门槛建面约170㎡,最大户型是建面约270㎡。项目建面约200㎡以上户型占比超50%,保证了豪宅社区的纯粹性。
建面约210㎡户型,四开间朝南,南北通透,整体约超17米的南向面宽,横屏巨幕将风景延伸入室。客厅开间约6.5米,LDKB一体化设计,打通客餐厅、厨房、阳台空间,实现南北双景,构成一个超大公区的交流磁场,可以满足各类生活场景的打造。

三卧朝南向阳,配置双套房设计,两间卧室配置衣帽间、卫浴间,大主卧卫浴奢配瞰江落地窗,拥景入室,好不惬意。
建面约218㎡户型,同样是方正的四房设计。该户型采用动静分区式设计,既保障了私密性,也最大程度上将景观体验感拉满。
奢华大边厅设计,L型弧形转角,搭配大面积落地窗玻璃,整个视觉的丰满度与开阔性呈现“IMAX”效果,将约1.3万方+东西楼间距约127米的中央园林景观尽收眼底。
南向开间约16米,客厅开间约5.6米,整个观景面达到了约21米,公区专门预留岛台空间,可以形成“洄游”动线,增加生活的场景。

主卧套间尺度全方位获得提升,独立衣帽间、化妆桌、豪华五件套卫浴间,有了五星酒店总统套房的感觉。
项目打造温州独特曲面屏弧形设计,以水面反射时的波光感作为灵感,通过弧形曲面与灵动线条设计,勾勒江面波浪与立面线条的浪漫糅合,是以往不曾有过的外立面风格。
宁波·龙湖云河颂建面约200㎡户型,四房三卫,奢华感顶满格。
进入屋内,南向约17米面宽,带来超常规空间体验与视觉突破,享MAX景观的同时,进一步拓展户外空间。南向超9米阳台与客厅、次套卧联通,可增设健身区、家政区等场景模块。
约70㎡的客、餐、厨一体全开放式大方厅,构成超大家庭社交场,无论处在哪个区域,都有着超强的尺度感。
主卧套房尺度豪横,超大的独立衣帽间,配备双台盆和大浴缸的独立私密卫浴空间,带来媲美五星级酒店的奢适享受,将空间上的尊崇私属感更上一层。
项目立面,将琥珀之金、秘色瓷之青融入其中,呈现出白金艺术化配色。以云、石、林、川、花为艺术汲取,自然生境“云河五颂”。
&华润·观宸以其前瞻性的四代住宅设计理念,将未来式建筑、城市与生态完美融合,缔造出一座充满生机的绿色之城。
建面约201㎡户型,四房两厅三卫双套房,独立玄关归家,入户双开门,尺度阔绰,在储物空间更足的同时,仪式感拉满。

270°空中环幕端厅,环幕视野,解放空间束缚,俯仰浩瀚天地。LDK一体化设计下,让客厅不再是“孤岛”,而是让餐厅、客厅、观景阳台融合为空中社交空间,家族聚会、开party都毫无压力。
四房双套房设计注重每个家庭成员的体验,三代人齐住,也不会影响各自的独立空间。尤其是行政级主卧套房独立奢华卫浴+一字型衣帽间+卧室的奢境配套,升级居住私享体验。
项目匠心独运,采用“多层次浮岛森林体系”,将植物景观与空中绿化巧妙结合,构建出一套立体绿化空间。
阅天府建面约202㎡四室两厅三卫,拥有约10㎡独立全明电梯厅归家,入户还拥有一个近5㎡的独立玄关空间,妥妥的双玄关归家入户。

公区呈现出超70㎡LDKB巨大方厅,面宽达到7.2米,观景阳台-客厅-餐厅,共处一个开放空间,保证各功能区域独立又共享。通透性、可视性、互动性更强,构成家庭的核心区域。
休息区采用双套房设计,南向约6米开间的星级酒店套房式主卧,卧室+书房+休闲区+独立卫浴,给予了家庭主人超强的奢享空间。
该建面约202㎡大方厅的户型,在超标的表现下,其实际居住体验已经接近于市场上超230㎡的户型。
项目建筑立面是由业内知名的gad杰地设计来担纲建筑设计,立面通体都是大面积的玻璃幕墙,结合银色的一体成型铝板,以经纬分明的线条、流畅圆润的弧度,打造出高公建化的立面。

通透的立面和弧形的效果,带来了震撼的全景舱视野,可以将一切景观尽收眼底。
映澜台只做了3栋、共130户的精华望江单位,每一户观江角度都有所不同、每一层都带来不同的景面与观江面。
建面约203㎡户型,四房两厅三卫,南向五开间望江,270°环幕江景视野,满足了改善圈层对奢阔社交空间和私享景观的需求。另外还在客厅做出了“X+1”定制空间,业主可以根据自己需求,定制生活场景。
可以按照喜好,打造成封闭式的卧室、工作室,或是开放式的兴趣空间,调香室、茶室、书法空间......
主卧令人惊叹的是打造的是双开间主卧,专属休息区+休闲区的组合搭配让生活更上一层。
项目为了更好的观看江景,外立面使用大面积玻璃,每一个角度的起承转合都蕴藏着巧思。
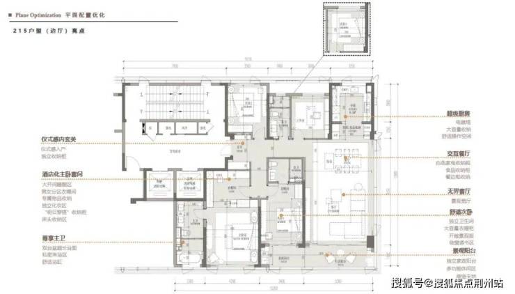
温州瑞府建面约215㎡户型,两厅四房三卫格局。
独立归家仪式感玄关设计,让归家有了缓冲区,还拥有独立的家庭收纳空间。
边客餐厅设计,270度视野搭配LDKB一体化设计让空间更整合,让视野更宽广,大面积落地窗都能将景观尽收眼底!U型厨房设计让操作更流畅,流线更合理。
酒店化主卧套间,南向约7米开间采光通风俱佳,超大独立衣帽间、独立化妆区、奢华五件套主卫。
项目立面设计以温州层次丰富的自然地理形态为灵感。通过对整体的考量,将住宅群设计为非对称的高低错落的非对称式设计形式。
南立面约80%玻璃占比,北面形体及立面的处理上跟南侧一致,采用规整的体量和大面的玻璃面处理,打造开阔通透室内外视野。
项目涵盖建面约200~322㎡面积段户型,200~233户型均为两梯两户类独梯入户。
建面约200㎡户型,在空间感营造方面,采用了“LDK餐客厨一体化设计”,将客厅、餐厅、厨房相互融合,突破了空间边界,实现动线流畅过渡,让整个空间面积达到了逾70㎡。
厨房连接餐厅,餐厅自然过渡到客厅,客厅再通过落地推拉门将活动区域无缝拓展到室外。不论是视觉空间还是使用空间都做到了极大的提升。
整个南向开间达到了约14.2米,为居住者带来了充足的采光条件和高度舒适度。
主卧套房的面积宽敞无比,达到了逾30㎡,主卫的面积近10㎡,其中包括了独立的梳妆台、卫生间、迷你吧台、以及预留储物和多功能空间,如此尺度的空间感所带来的居住舒适度可想而知。
项目为公建化外立面,采用现代极简主义设计手法,建筑塔冠设计汲取汾河风帆以及流水的元素,营造出高辨识度的塔冠造型,双“L”的造型增加项目识别度,彰显建筑硬朗挺拔形象。
保利新川天珺建面约205㎡户型,四室两厅两卫,升级迭代明显。
归家入户艺术玄关,给足了尊贵感。
全景仓端方厅空间,360°环幕视野+X空间,打造一个360°的全方位采光的LDK厅。既保证了完整的公建化立面,又能满足客厅功能复合化,还多出一方独一无二的全景视野。
奢华大主卧套,是罕见的360度环幕主卧套房!各种功能空间应有尽有。
项目外立面是现代工艺下经典形体与摩登海派的碰撞。
立面呈现出极为简洁的生长感,公建化处理,大量一体化铝板斜切工艺处理,转角弧形玻璃,弧形元素。
温州时代滨江瑧品售楼处电话400-005-0788转接2222(已认证)
温州时代滨江瑧品营销中心电话400-005-0788转接2222【售楼中心】
温馨提示:网上售楼中心〢预约可享内部优惠〢匠心钜制-恭迎品鉴〢
免责声明:(本文章所用信息图片来源于网络,如有侵权请联系本网站及时删除)
声明:本文由入驻焦点开放平台的作者撰写,除焦点官方账号外,观点仅代表作者本人,不代表焦点立场。
