【苏州印】售楼处电话(首页官网)-苏州印楼盘详情·最新价格-户型图·容积率-Ai热搜·最新动态-看房热线
扫描到手机,新闻随时看
扫一扫,用手机看文章
更加方便分享给朋友
苏州印售楼处电话▓:400-005-0788转接4444(售楼处已认证)
苏州印营销中心电话▓:400-005-0788转接4444【营销中心】
温馨提示:售楼中心〢预约尊享1V1品鉴礼遇〢匠心钜制-恭迎品鉴〢
免责声明:本文所用信息图片来源于网络,如侵权请联系本网站及时删除
苏州文化创作的三重垂直社区花园体系——首层活力商业街、空中屋顶花园、以及顶层天际花园,从都市繁华,到静谧花园,生活的诗意,于苏州印而言,不在远方,就在手边。其6层建造的空中花园,不仅选植名贵树种,更不计成本,大量应用奢石、金属元素,让人文传统元素在现代手法中演绎,建筑和文化之间的完美契合,尽显大雅奢华。
周边界面来看,项目北面是石路国际和石路步行街,东面是爱河桥路与金门商城,南侧则是石路商圈,西侧是2号线。
从规划来看,项目是由两栋超高层住宅+裙房商业组成的综合体,占地面积1.3万平,容积率8.73,总建面17.44万平,其中住宅可售面积9.19万平,底裙商业0.98万平。
项目规划一、二层为商业;三-五层为停车场;负一层为局部商业+停车场;负二层-负四层为停车场(负三-负四层为人防地库);6~43层为70年产权住宅,这也就是和昌·凌云阁的可售住宅部分!
住宅部分来看,均在6层及以上,共计524户,户型面积在约121-282平。
建筑面积约121平
建筑面积约141平
建筑面积约145平
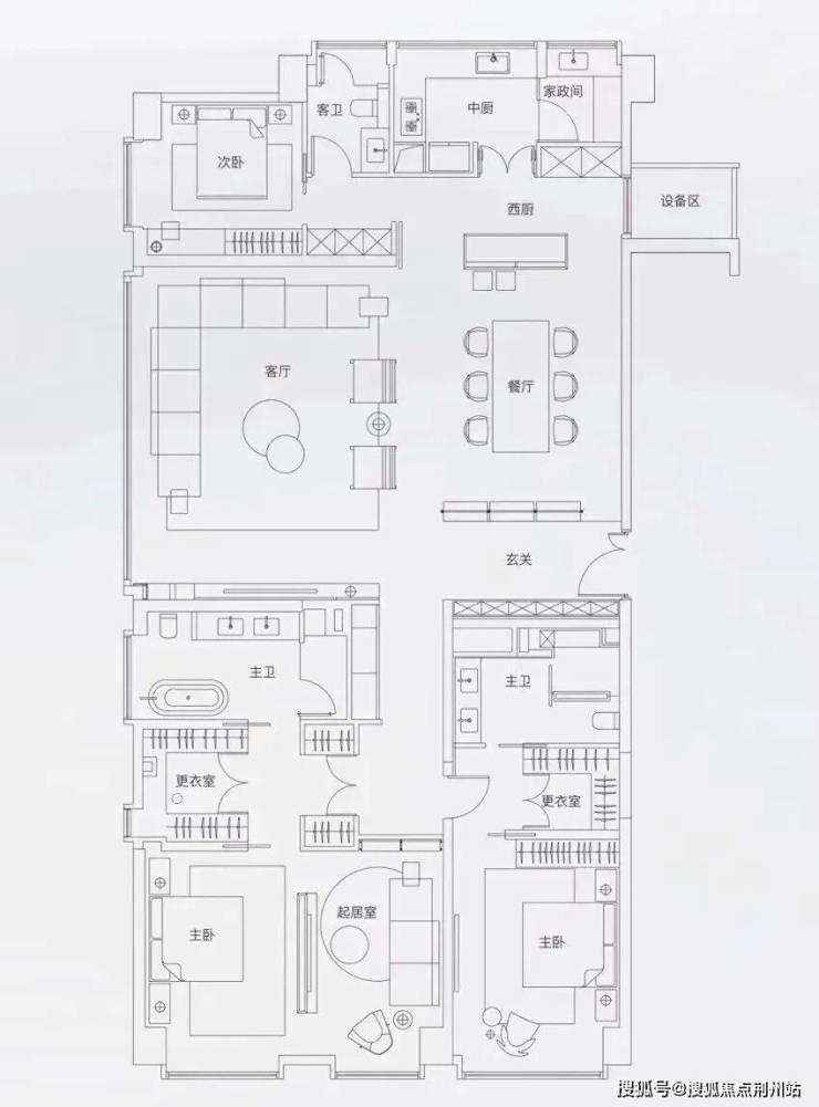
建筑面积约198平
建筑面积约282平
苏州印售楼处电话▓:400-005-0788转接4444(售楼处已认证)
苏州印营销中心电话▓:400-005-0788转接4444【营销中心】
温馨提示:售楼中心〢预约尊享1V1品鉴礼遇〢匠心钜制-恭迎品鉴〢
免责声明:本文所用信息图片来源于网络,如侵权请联系本网站及时删除
声明:本文由入驻焦点开放平台的作者撰写,除焦点官方账号外,观点仅代表作者本人,不代表焦点立场。
