武汉福星惠誉·铂雅府官方售楼处电话(武汉福星惠誉·铂雅府)官方网站-武汉福星惠誉·铂雅府营销中心欢迎您-楼盘详情•最新价格-户型图-容积率@2026售楼处
扫描到手机,新闻随时看
扫一扫,用手机看文章
更加方便分享给朋友
福星惠誉·铂雅府售楼处电话:400-005-0788转6666(已认证)
福星惠誉·铂雅府开发商电话:400-005-0788转6666【售楼中心】
温馨提示售楼中心〢预约尊享1V1品鉴礼遇〢匠心钜制-恭迎品鉴〢
温馨提示本项目暂不接受临时到访,过来参观样板房请记得提前来电预约!
名称:福星惠誉·铂雅府
板块:汉口主城 江岸核心 建设大道 金融主轴
基因:“铂雅府系”城市中心战略级作品
产品类型:洋房、高层
容积率:约2.5(北区组团)
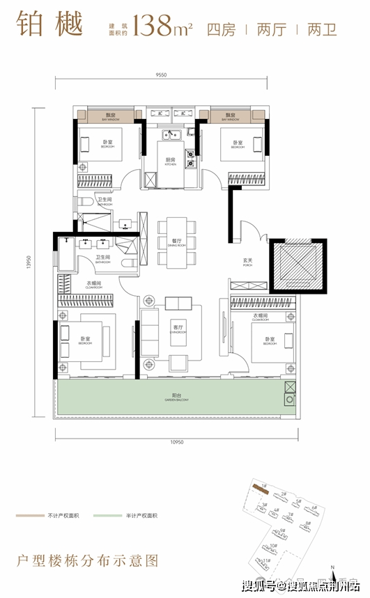
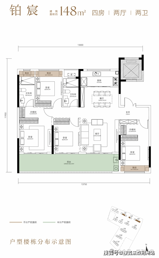
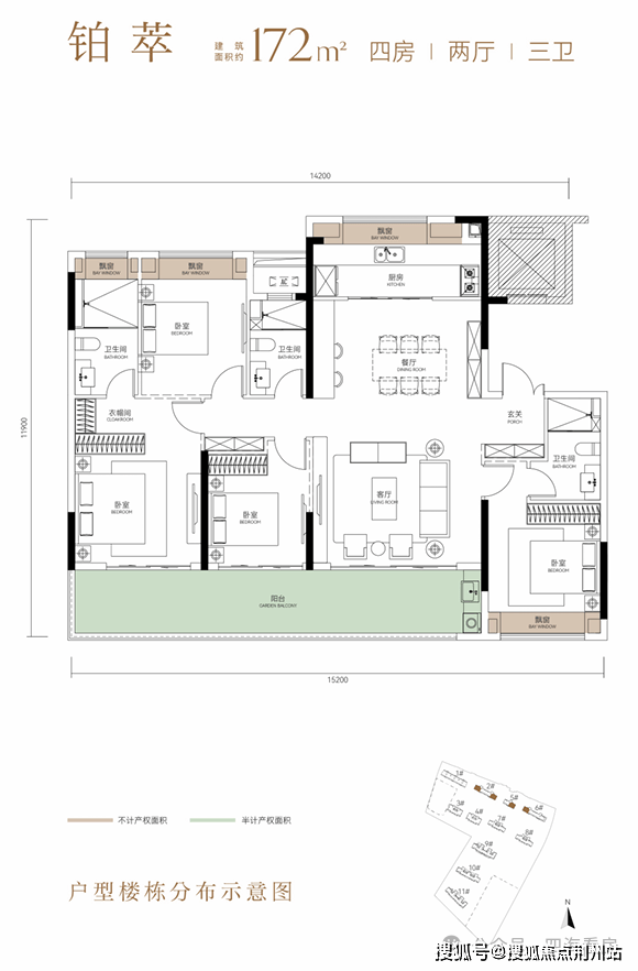
面积:建面约110-170㎡汉口城心·准四代低密洋房
周边配套:中国武汉·建设大道·育才小学
物业公司:惠之美生活服务集团有限公司
点击添加图片描述(最多60个字) 编辑
点击添加图片描述(最多60个字) 编辑
品牌展厅:龙湖江宸天街1F中庭(2号电梯厅旁,丝芙兰对面)
CHAPTER 1
【24载福星惠誉 城心战略级作品】
2024年,福星惠誉携全新产品系迭代而来,落子建设大道金融街,著极新一代城市中心战略级作品。
全球首座铂雅府系,汉口首个高定准四代奢宅,中心之上,耀世登临。
CHAPTER 2
【品牌观:城市中心立铂雅】
24载深耕履迹 引领城市人居焕新
武汉城市运营商 价值迭新驱动器
福星惠誉,立足本土,布局全国,实业为底,实干为基。
始终以稳健的实力和担当,匠筑穿越时间周期的品质之作,成为城市更新与幸福生活服务商。
点击添加图片描述(最多60个字) 编辑
城市中心合伙人 热销红盘缔造者
立足核心的择址观和前瞻性的规划,并屡创现象级热销。
点击添加图片描述(最多60个字) 编辑
【择址观:臻贵之萃归铂雅】
世界都会武汉 惟此金融静区
全球金融街旁 贵在金融谧境
唯有金融街旁浓荫密布的自然谧境最矜贵。一方城央静界,已然成为全球高净值人群栖居所向。
点击添加图片描述(最多60个字) 编辑
造极建设大道 惟此金融静区
国际都市武汉,一条千亿建设大道。纵贯百年汉口之心,集萃一城。建设大道金融街,云集4大国有银行、5A甲级写字楼、超200家金融机构、多国领事馆和世界500强企业。
点击添加图片描述(最多60个字) 编辑
贵隐金融谧境 奢享6大顶配资源
集萃政金、商圈、人文、生态、交通、烟火六大顶级配套,定鼎城央谧境人居价值之极。
点击添加图片描述(最多60个字) 编辑
【人文观:百年人文映铂雅】
十年难得双学府 人文贵雅书香地
育才+六初九年一贯制学校
都会繁华之心,投资额约2.5亿,同享本校师资力量及教育资源。结合学生成长需求,设计上以架空式操场提供高质量户外活动空间和超大型室内风雨操场,并设有大型报告厅、图书馆、功能教室、餐厅等空间。
点击添加图片描述(最多60个字) 编辑
【规划观:纯粹低密著铂雅】
都会低密境 奢隐浓荫里
低密于城
福星惠誉·铂雅府以汉口主城罕见的约2.5容积率(北区组团),打造城央稀缺低密住区,繁华与静谧兼得。
隐谧于世
洋房/小高层产品形态,营创独立私密居住氛围,稀缺之上再造稀缺。
大师云集
汇集上海日清、HWCD、ONE-CU壹方等全球顶尖设计天团,从曼谷四季酒店、城市岛屿、秘境会所等顶奢美学概念中汲取灵感,融合世界级精粹资源,创著汉口城心首个准四代高定奢宅。
点击添加图片描述(最多60个字) 编辑
【产品观:高奢迭代琢铂雅】
汉口城心首个 高定准四代奢宅
雅奢建筑 类公建化美学立面
类公建化美学建筑,超阔光幕立面,领航汉口城心天际线。
点击添加图片描述(最多60个字) 编辑
逸奢园林 臻藏极致归家礼遇
循世界级高奢酒店灵感,以度假式生活场景,敬献圈层人物内外兼修、栖心静谧之域。
八大森心谧境 丰盈人生真意
静谧都会绿洲,以水境、林境、庭境、廊境、光境、云境、瀑境、园境八大森心谧境,将广袤无垠的自然空间诗意串联,奢定大隐于市的度假日常。
点击添加图片描述(最多60个字) 编辑
四大岛屿会所 收藏圈层时光
分龄段设置童梦之岛、悦己之岛、茗仕之岛、清欢之岛四大主题空间。满足高端业主圈层娱体、品味、资源、社交等先锋生活需索。
点击添加图片描述(最多60个字) 编辑
双精装入户大堂 恭迎顶峯人物
首层+地下双精装入户大堂、独立电梯厅,雕琢归家质感,出入之间,皆能体验五星级酒店式贵宾尊崇礼遇。
点击添加图片描述(最多60个字) 编辑
领奢户型 汉口首个高定准四代宅
南向四面宽境、百变高得户型、空中花园阳台、LDKB一体化超厅…对标顶豪尺度,遵循最优朝向,福星惠誉·铂雅府以城市引领者姿态,打造超越此前所见的高定准四代奢宅,重定城心奢居典范。
点击添加图片描述(最多60个字) 编辑
【服务观:人生至此当铂雅】
金钥匙管家 专属高定礼遇
福星惠誉·铂雅府引入拥有近百年历史的国际服务顶流名片一一金钥匙物业联盟,以金钥匙服务标准为广大业主营造舒心的生活氛围。以顶奢酒店服务为标准,为业主量身定制个性化服务体系。
点击添加图片描述(最多60个字) 编辑
户型鉴赏
点击添加图片描述(最多60个字) 编辑

点击添加图片描述(最多60个字) 编辑

点击添加图片描述(最多60个字) 编辑

点击添加图片描述(最多60个字) 编辑

点击添加图片描述(最多60个字) 编辑

福星惠誉·铂雅府售楼处电话:400-005-0788转6666(已认证)
福星惠誉·铂雅府开发商电话:400-005-0788转6666【售楼中心】
温馨提示售楼中心〢预约尊享1V1品鉴礼遇〢匠心钜制-恭迎品鉴〢
温馨提示本项目暂不接受临时到访,过来参观样板房请记得提前来电预约!
免责声明(本文章所用信息图片来源于网络,如有侵权请联系本网站及时删除)
声明:本文由入驻焦点开放平台的作者撰写,除焦点官方账号外,观点仅代表作者本人,不代表焦点立场。
