天创贝好家·元萃(售楼处)官网 - 武汉天创贝好家·元萃销售中心 - 环境 - 户型 - 价格 - 地址 - 楼盘详情 - 配套 - 电话 - 交房时间
扫描到手机,新闻随时看
扫一扫,用手机看文章
更加方便分享给朋友
武汉天创贝好家·元萃
售楼处电话:400-005-0788转接7777(官方认证)
营销中心电话:400-005-0788转接7777【售楼中心】
温馨提示:售楼中心〢预约尊享1V1品鉴礼遇〢匠心钜制-恭迎品鉴
免责声明:(本文章所用信息图片来源于网络,如有侵权请联系本网站及时删除)

项目实景示范区刚刚开放,从现场实景来看,算不上特别惊艳,不过公区、会所等四代住宅的常规配置这里也有。




重点来看它的户型,低密小高层,优化面积还是比较丰富的,据置业顾问介绍,优化后得房率都超过了100%。
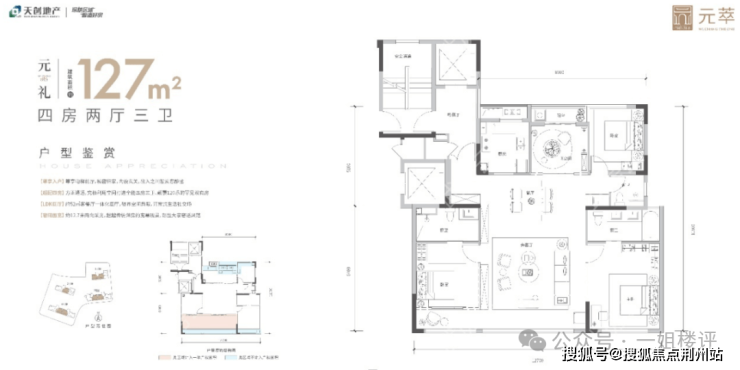
该项目主打建面约127、142、170平户型,整体面积偏大。
建面约127平户型最多,做的是四房两厅三卫:
该户型带独立电梯前室,南向大阳台外面有花池优化面积,北向还有一处设备平台优化空间,整体优化面积确实比较多。
因此这个户型做了四房三卫,南向是双套房设计,功能性比较强,不过有个套卫是暗房。

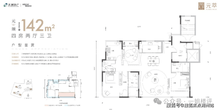
建面约142平户型也是四房两厅三卫:
该户型为2、3、4号楼端头边户,除了南向大开间之外,还是三面采光,主卧和北侧卧室是双面飘窗优化,尤其是主卧做了270°拐角飘窗。
这个户型也是南向双套房,客厅、主卧空间都非常大,还有一个较大的独立电梯前厅,不过依然有个套房的卫生间是暗房。

最大面积的是建面约172平的四房两厅三卫大平层:
这个户型仅分布于2号楼最西端,房源数量是最少的,也是面积最大的户型。
客厅采用270度全景舱设计,南向主卧套房也采用了转角窗设计,配合2号楼西头的位置,可三面俯瞰小区园林,景观视野不错,不过也有西晒的影响。

该项目毛坯销售,也是武昌核心年底一众准四代新盘中,少见的毛坯销售的房源。因此样板间仅能作为参考。

武汉天创贝好家·元萃
售楼处电话:400-005-0788转接7777(官方认证)
营销中心电话:400-005-0788转接7777【售楼中心】
温馨提示:售楼中心〢预约尊享1V1品鉴礼遇〢匠心钜制-恭迎品鉴
免责声明:(本文章所用信息图片来源于网络,如有侵权请联系本网站及时删除)
声明:本文由入驻焦点开放平台的作者撰写,除焦点官方账号外,观点仅代表作者本人,不代表焦点立场。
