杭州【保利·天奕】营销中心认证VIP热线电话_2025更新购房指南+楼盘图文详情
扫描到手机,新闻随时看
扫一扫,用手机看文章
更加方便分享给朋友
杭州【保利·天奕】
🌈售楼处电话☎️400-033-1899转接8999【售楼中心】【已认证】
🌈营销中心电话☎️400-033-1899转接8999【营销中心】【已认证】
🌈开发商营销中心-----欢迎来电预约尊享折扣-----匠心钜制恭迎品鉴
项目概况
位置:位于未来科技城核心区域,高教路与绿汀路交汇处,紧邻地铁12号线水乡南路站(在建),步行可达天元公学和睦校区。
规模:总用地面积8.27万㎡,总建筑面积约30万㎡,规划23幢高层住宅,共1491户,是未来科技城罕见的大盘。
产品亮点
户型设计:主力户型为103-175㎡,涵盖三房至四房,得房率高达90%以上。如103㎡边套配备六人位餐桌,137㎡边套主卧带270°转角飘窗,138㎡边套南向采光面超10米。
公区配置:约3000㎡西溪里会所,含恒温泳池、健身房、瑜伽室、壁球馆等;约7000㎡架空层,打造23个主题空间,如童玩盒子、烘焙盒子等。
精装标准:日立中央空调、威能地暖、麦迪龙新风,厨房配备老板三件套+博世洗碗机,卫浴选用高仪、科勒等一线品牌。
103方中间套户型

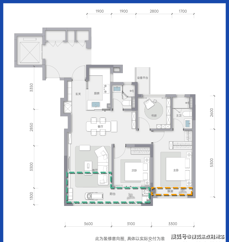
119方/四室两厅两卫/中间套/两梯三户

137方边套户型

杭州【保利·天奕】
🌈售楼处电话☎️400-033-1899转接8999【售楼中心】【已认证】
🌈营销中心电话☎️400-033-1899转接8999【营销中心】【已认证】
🌈开发商营销中心-----欢迎来电预约尊享折扣-----匠心钜制恭迎品鉴
声明:本文由入驻焦点开放平台的作者撰写,除焦点官方账号外,观点仅代表作者本人,不代表焦点立场。
