(平江观梅雅园)售楼处-24小时热线→售楼部地址→房价@(平江观梅雅园)2025最新折扣-楼盘百科详情→24小时热线电话
扫描到手机,新闻随时看
扫一扫,用手机看文章
更加方便分享给朋友
苏州平江观梅雅园
售楼处电话:400-002-9578转9999(已认证)
网上销售中心——24小时在线咨询TEL——恭迎品鉴!
-----------欢迎来电预约尊享专业顾问讲解一对一服务!
免责声明:(本文章所用信息图片来源于网络,如有侵权请联系本网站及时删除)

在布局方面,联排别墅沿着河岸依次排开,洋房有序分布,使得居住圈层更为纯粹。
小区的东侧设置了主出入口,北侧则为次出入口,且在这两处出入口均设计了汽车坡道。这里拥有的地下停车位,在姑苏核心区堪称罕见。

该项目的外立面设计令人眼前一亮。其采用大面积落地玻璃窗,搭配深灰色屋檐,并以金属线条进行精妙勾勒。如此设计,既彰显出时尚的现代感,又完美保留了姑苏古城的古韵底色。

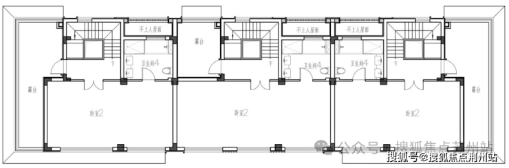
项目户型也已同步公示。其中,3层联排采用南北接口入户的设计,南向面宽接近10米。
一层为活动区域,采用餐客厅一体化的设计理念,配备中西双厨,设有干湿分离的客卫,还预留了电梯位。此外,南向设有卧室,可作为老人房使用。

2F生活区,餐客厅上空挑空,两个独立的卫生间,可根据自己的需求,设计成两个套房。

3F为生活区,边户主卧大套房+侧边L型大露台,中间户主卧大套房+北侧露台。让生活充满更多可能。

8F洋房户型,4房2厅2卫设计,全屋飘窗,南向面宽约10.2米,四开间朝南,其中3卧室均朝南,并且南向双套房。
南北双阳台,南向双联阳台,保证采光和通风的充足,入户家政间,保证收纳空间。
苏州平江观梅雅园
售楼处电话:400-002-9578转9999(已认证)
网上销售中心——24小时在线咨询TEL——恭迎品鉴!
-----------欢迎来电预约尊享专业顾问讲解一对一服务!
免责声明:(本文章所用信息图片来源于网络,如有侵权请联系本网站及时删除)
声明:本文由入驻焦点开放平台的作者撰写,除焦点官方账号外,观点仅代表作者本人,不代表焦点立场。
