官网首页发布【星河湖西源启】丨售楼处电话丨营销中心最新发布-➢2025楼盘百科-环境-户型-价格 -地址-楼盘详情-配套-电话-交房时间-配套-交房时间
扫描到手机,新闻随时看
扫一扫,用手机看文章
更加方便分享给朋友
🏡✅【苏州】星河湖西源启
🏡✅星河湖西源启售楼处电话☎️400-133-5355【售楼中心】【已认证】
🏡✅星河湖西源启营销中心电话📞400-133-5355【营销中心】【已认证】
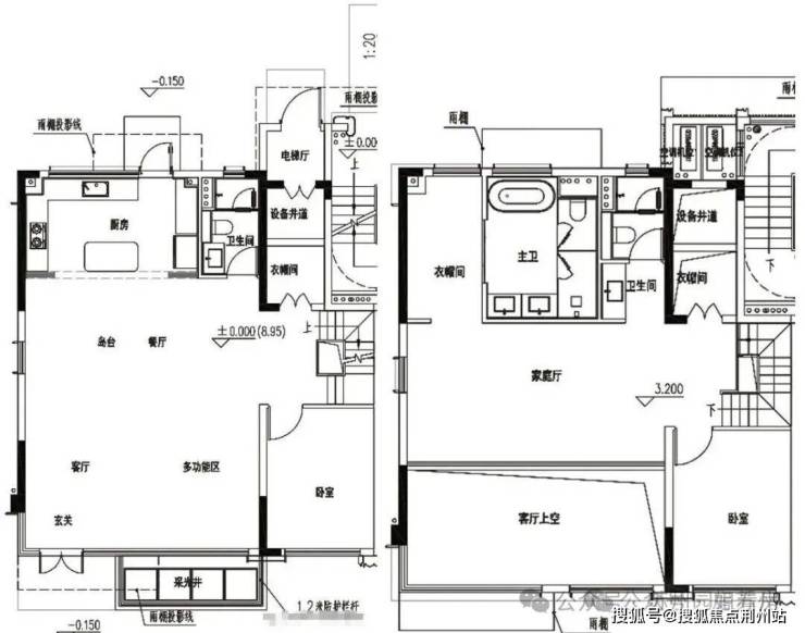
容积率仅1.25,是郭巷难得低密地块;根据规划,拟建24幢住宅,包括22栋4F叠加+2栋11F洋房!其中洋房为四代宅。



户型同步公示!据爆料,叠加建面约160-180㎡,洋房建面约141㎡,都是改善大户型。
洋房建面约143㎡4房2卫,4开间朝南,整体南向开间约14.5米,客厅开间约5m,主卧套房,北向生活阳台,分奇、偶数层,区别主要在于空中庭院。

7#为4F叠加,下叠建面约180㎡左右,南北双入户,6.7m超大方厅,全卧室朝南设计;二层挑空赠送面积超大。
🏡✅【苏州】星河湖西源启
🏡✅星河湖西源启售楼处电话☎️400-133-5355【售楼中心】【已认证】
🏡✅星河湖西源启营销中心电话📞400-133-5355【营销中心】【已认证】
声明:本文由入驻焦点开放平台的作者撰写,除焦点官方账号外,观点仅代表作者本人,不代表焦点立场。
