2025苏州平江观梅雅园售楼处电话/ 苏州平江观梅雅园户型图/ 苏州平江观梅雅园项目售楼处电话/地址/ 预约热线_房价_户型_楼盘详情
扫描到手机,新闻随时看
扫一扫,用手机看文章
更加方便分享给朋友
🌈苏州平江观梅雅园售楼处电话☎️400-002-9578转接5555(专人接听)
🌈苏州平江观梅雅园营销中心电话:☎️400-002-9578转接5555【营销中心】
🌈温馨提示:拨打400电话,听到嘀声后,输入分机号5555即可!
在布局方面,联排别墅沿着河岸依次排开,洋房有序分布,使得居住圈层更为纯粹。
小区的东侧设置了主出入口,北侧则为次出入口,且在这两处出入口均设计了汽车坡道。这里拥有的地下停车位,在姑苏核心区堪称罕见。

该项目的外立面设计令人眼前一亮。其采用大面积落地玻璃窗,搭配深灰色屋檐,并以金属线条进行精妙勾勒。如此设计,既彰显出时尚的现代感,又完美保留了姑苏古城的古韵底色。

🌈苏州平江观梅雅园售楼处电话☎️400-002-9578转接5555(专人接听)
🌈苏州平江观梅雅园营销中心电话:☎️400-002-9578转接5555【营销中心】
🌈温馨提示:拨打400电话,听到嘀声后,输入分机号5555即可!
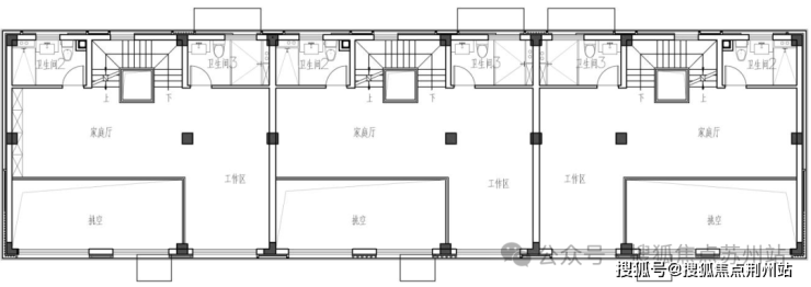
项目户型也已同步公示。其中,3层联排采用南北接口入户的设计,南向面宽接近10米。
一层为活动区域,采用餐客厅一体化的设计理念,配备中西双厨,设有干湿分离的客卫,还预留了电梯位。此外,南向设有卧室,可作为老人房使用。

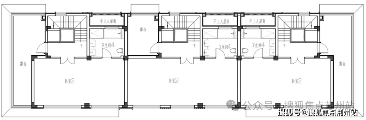
2F生活区,餐客厅上空挑空,两个独立的卫生间,可根据自己的需求,设计成两个套房。

3F为生活区,边户主卧大套房+侧边L型大露台,中间户主卧大套房+北侧露台。让生活充满更多可能。

🌈苏州平江观梅雅园售楼处电话☎️400-002-9578转接5555(专人接听)
🌈苏州平江观梅雅园营销中心电话:☎️400-002-9578转接5555【营销中心】
🌈温馨提示:拨打400电话,听到嘀声后,输入分机号5555即可!
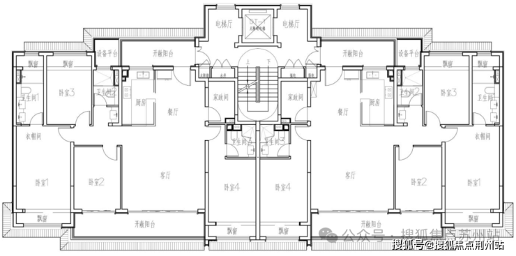
8F洋房户型,4房2厅2卫设计,全屋飘窗,南向面宽约10.2米,四开间朝南,其中3卧室均朝南,并且南向双套房。
南北双阳台,南向双联阳台,保证采光和通风的充足,入户家政间,保证收纳空间。

平江观梅雅园精准落位姑苏区平江街道江宇路西侧、规划支七路南侧,恰处于官渎大厦的北面。
其周边城市风貌平平,被诸多老旧小区环绕。不过,此地的优势在于交通便捷,临近地铁6号线,且与城北快速路、北环快速路、苏站路等交通要道相邻。
项目的西侧与南侧均有景观水系环绕,往南不远处便是护城河。

🌈苏州平江观梅雅园售楼处电话☎️400-002-9578转接5555(专人接听)
🌈苏州平江观梅雅园营销中心电话:☎️400-002-9578转接5555【营销中心】
🌈温馨提示:拨打400电话,听到嘀声后,输入分机号5555即可!
此外,该区域还坐拥平江新城幼儿园、娄葑学校西校区、崇道小学等学校。再加上规划中的2宗学校用地,教育资源可谓极为丰富!
延伸阅读:平江新城东南片区规划(2024.12.10)


🌈苏州平江观梅雅园售楼处电话☎️400-002-9578转接5555(专人接听)
🌈苏州平江观梅雅园营销中心电话:☎️400-002-9578转接5555【营销中心】
🌈温馨提示:拨打400电话,听到嘀声后,输入分机号5555即可!
声明:本文由入驻焦点开放平台的作者撰写,除焦点官方账号外,观点仅代表作者本人,不代表焦点立场。
