南通万濠东郡(售楼处) 官方首页 -万濠东郡 销售中心 - 环境 - 户型 - 价格 - 地址 - 万濠东郡楼盘详情 - 配套 - 电话 - 交房时间
扫描到手机,新闻随时看
扫一扫,用手机看文章
更加方便分享给朋友
南通万濠东郡售楼处电话▓:400-002-9578转接4444(售楼处已认证)
南通万濠东郡营销中心电话▓:400-002-9578转接4444【营销中心】
温馨提示:售楼中心〢预约尊享1V1品鉴礼遇〢匠心钜制-恭迎品鉴〢
免责声明:本文所用信息图片来源于网络,如侵权请联系本网站及时删除
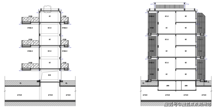
而万濠东郡跃级四代宅,通过奇偶层错位互相咬合设计,让客厅及露台通高挑空,单层层高达到3.15米,客厅挑高达到6.3米!
这种突破性设计,让每一户都能同时拥有挑高墅厅和南北双花园,兼得别墅的垂直尺度与大平层的横向尺度。

▲跃级四代宅剖面示意图
从下面户型图可以看到,万濠东郡建面约193㎡跃级四代宅,活动区通过LDKBG一体化设计,将超6米挑高墅厅与环绕式空中花园融为一体,创造出横向无界、纵向通透的生活场域。
休憩区则采用四房三卫双套房设计,主卧配置奢华堪比星级酒店,两间次卧均南连大阳台,充分保障每位家庭成员的空间舒适度与景观享有度。
▲跃级四代宅户型图
整个产品设计不仅带来气场全开的空间感,更垂直拓展了生活场景的可能性,满足更多元、更高阶的生活需求。
可以说,不论是从功能上,还是感受上,亦或是价值上,万濠东郡跃级四代宅相比其他房子,所有的体验感全部double,这样的设计在南通是非常少见的!
▲跃级四代宅效果图
不仅如此,万濠东郡跃级四代宅还精准破解了普通四代宅在采光、视野等方面的痛点!
普通四代宅痛点:露台设计通常会采用超常规阳台的进深尺度,对本层与露台相连房间的采光产生影响,同时悬挑空间还会影响下层住户采光。
万豪东郡跃级四代宅:通过露台+客厅双通高设计,形成内外贯通的垂直采光面,更大限度地引入自然光,营造立体化的开阔视界。
▲跃级四代宅效果图
除了南通首个超6米挑高跃级四代宅之外,此次万濠东郡还规划了滨水别墅+墅区洋房,整盘仅197席臻稀藏品。
独门独户的滨水别墅,户户都享前庭+后院+星空露台,真正实现“有天有地”的居住梦想。
▲别墅效果图
要知道,工农路沿线别墅产品已断供多年,万濠东郡的出现,对于渴望在主城安居的塔尖圈层而言无异于“久旱逢甘霖”。
▲别墅效果图
相较于市面上诸多10层以上的所谓“洋房”,万濠东郡带来的,不仅是7层真洋房,而且还“与墅为邻”,较竞品显然拥有更好的私密性、更高的舒适度。
▲洋房效果图
建面约145㎡洋房户型图也已曝光,四室两厅两卫设计,整个空间布局方正通透;南向四开间大面宽,采光通风视野俱优;LDKB一体化,会客区尺度奢阔;主卧套房配置独立卫浴和衣帽间,南向双次卧均与阳台相连,兼顾功能性、空间感与舒适度。
▲洋房户型图
总结而言,约1.29的容积率,赋予其天生的低密基因;四代宅的属性,引领其超前的产品形态;城芯滨水的地段,则让其在自然与繁华交汇之处,定制出一个完整的豪宅生态系统
南通万濠东郡售楼处电话▓:400-002-9578转接4444(售楼处已认证)
南通万濠东郡营销中心电话▓:400-002-9578转接4444【营销中心】
温馨提示:售楼中心〢预约尊享1V1品鉴礼遇〢匠心钜制-恭迎品鉴〢
免责声明:本文所用信息图片来源于网络,如侵权请联系本网站及时删除
声明:本文由入驻焦点开放平台的作者撰写,除焦点官方账号外,观点仅代表作者本人,不代表焦点立场。
