绿城兴贤澜颂(售楼处)首页网站-销售中心(营销中心)楼盘欢迎您-小区环境-户型-价格-地址-楼盘详情-周边配套-售楼处电话-交房时间
扫描到手机,新闻随时看
扫一扫,用手机看文章
更加方便分享给朋友
绿城兴贤澜颂
售楼处电话400-005-0788转接2222(已认证)
营销中心电话400-005-0788转接2222【售楼中心】
温馨提示:网上售楼中心〢预约可享内部优惠〢匠心钜制-恭迎品鉴〢
免责声明:(本文章所用信息图片来源于网络,如有侵权请联系本网站及时删除)
项目拟建4栋11层洋房,3栋6F叠墅,32栋3层联排别墅,其中洋房为全装修交付,同时社区设计了私密庭院+下沉式会所。
项目大区营造1轴3心8大景观,以“京杭古韵,繁华姑苏”为设计主题,汲取<姑苏繁华图>八景的东方设计美学语言,营造闲适自在的山水园林度假氛围。

下沉式会所营造度假式的生活体验。
合院以金属型材+石材一体板搭配;全户型通透大面积玻璃运用;洋房深浅色调灵动搭配;洋房现代简约线条,舒展挺拔。
合院的中式屋檐,借景框景的建筑结构,合院古铜色金属色调,传统对称建筑结构。

面积段出炉 两种规划户型出炉
绿城兴贤澜颂目前还没有公布官方户型图,不过项目的户型面积段已经发布了!
合院:建筑面积约280、360、410、470平;
叠墅:建筑面积约170、187平上叠/中叠;建筑面积约270、300平下叠;
洋房:建筑面积约117、136、143平;

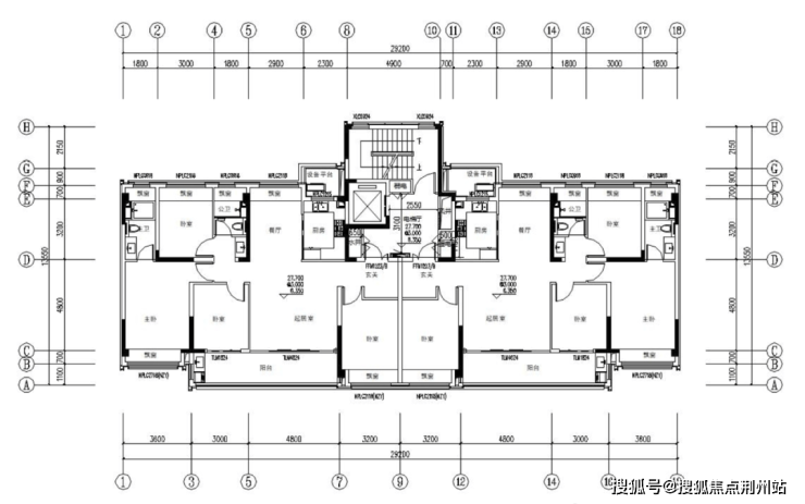
项目此前发布联排和洋房的规划户型图。
联排别墅户型】客厅挑空,大面宽

【洋房户型】四面宽,1梯2户高得房率


浒墅关板块
绿城兴贤澜颂,即苏地2024-WG-Z34号地块,位于高新区经开区(镇)鸿禄路东、中虹路北,属于浒墅关板块!
周边界面来看,其实居住氛围不错,北面是住宅小区阳山花苑,东面是汇金广场和住宅用地,南面是河流。

绿城兴贤澜颂
售楼处电话400-005-0788转接2222(已认证)
营销中心电话400-005-0788转接2222【售楼中心】
温馨提示:网上售楼中心〢预约可享内部优惠〢匠心钜制-恭迎品鉴〢
免责声明:(本文章所用信息图片来源于网络,如有侵权请联系本网站及时删除)
声明:本文由入驻焦点开放平台的作者撰写,除焦点官方账号外,观点仅代表作者本人,不代表焦点立场。
