越秀·运河樾 (售楼处) 官方-越秀·运河樾 -销售中心-环境-户型-越秀·运河樾 价格 - 越秀·运河樾 地址-楼盘百科-配套-越秀·运河樾 -售楼处- 电话 - 交房时间
扫描到手机,新闻随时看
扫一扫,用手机看文章
更加方便分享给朋友
杭州越秀运河樾售楼处电话▓:400-005-0788转接4444(售楼处已认证)
杭州越秀运河樾营销中心电话▓:400-005-0788转接4444【营销中心】
温馨提示:售楼中心〢预约尊享1V1品鉴礼遇〢匠心钜制-恭迎品鉴〢
免责声明:本文所用信息图片来源于网络,如侵权请联系本网站及时删除
杭州越秀运河樾核心围绕 “四处运河之源” 展开:

形态之源——以运河流淌之形贯穿住宅区,同时跌水联通上下三层立体下沉空间,模拟运河自然流势;
意境之源——模拟“宋韵十大雅集”定制十大水岸生活场景,古今生活形成时代对话;
文化之源——融入杭州传统文化于定制铺装、宅印符号等细节处,让运河文化实现生活美学转译的跃迁;
空间之源——借鉴宋画《四景山水图》中的“坊下檐、檐下廊、林中亭、水畔居”等,构建多重江南折叠院落。
以江南古典园林的设计理念展现“以小见大”的空间层次,转译杭州枕水而居一半烟火,一半诗意的立体宋韵长卷。
以“引水入园”之法,全维还原“枕水而居”的经典运河场景。一条约145米长的人工溪涧,以石凿岸,从西而东贯通整个园林。它曲水流觞,绕园而行,直至落差约12米的三层下沉式庭院,化作层层跌落的瀑布,刚柔并济,气象万千。
取意于江南水乡的"乌篷船",构建林中水台,仿佛一叶轻舟泊入绿意,形廓清雅,边界消融于自然,围合出开放而沉浸的景观生活场。
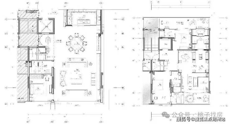
项目主力户型面积段约270~320㎡,包含下叠、中叠、上叠三类产品。
户型设计包含私家电梯、庭院、空中花园、地下室及露台等功能空间,不同户型的空间附赠比例不同:下叠实得率140%—150%,得院率81%—90%;中叠实得率132%—138%,得院率14%—19%;上叠实得率179%—183%,得院率95%—124%。附赠空间可用于拓展生活场景,增强空间使用的灵活性。
比如建面约270方的下叠,大客厅大厨房大主卧,每一层的空间都很享受,尤其一楼还连通了近100方的院子,不论是看起来还是用起来,都是大宅的体验。

下叠的地下空间,可以说是大得一眼看不到头,最高层高有6.1米,甚至可以在家里搞一个私家会所。
而且不少下叠房源,还连通着园区的下沉式庭院,可以从公区直接就走回下叠地下室,更方便更好用。
300方的产品,也有一个约60-120方的地下室,算上北面入户的通道小院,实际得房率也要超过120%。

上叠的附加资源同样丰富,做到了南北双露台,顶楼还赠送了一整层露台,有独立的北向入户花园和电梯厅,私梯还直达约60多方的地下室。
▲ 户型3 建面约320㎡户型(上叠)
杭州越秀运河樾售楼处电话▓:400-005-0788转接4444(售楼处已认证)
杭州越秀运河樾营销中心电话▓:400-005-0788转接4444【营销中心】
温馨提示:售楼中心〢预约尊享1V1品鉴礼遇〢匠心钜制-恭迎品鉴〢
免责声明:本文所用信息图片来源于网络,如侵权请联系本网站及时删除
声明:本文由入驻焦点开放平台的作者撰写,除焦点官方账号外,观点仅代表作者本人,不代表焦点立场。
