苏州平江观梅雅园楼盘分析报告→ 项目优缺点 →苏州平江观梅雅园交通教育配套→户型优惠分析→售楼处电话→苏州平江观梅雅园24小时热线电话
扫描到手机,新闻随时看
扫一扫,用手机看文章
更加方便分享给朋友
🌈苏州平江观梅雅园售楼处电话☎️400-002-9578转接5555(专人接听)
🌈苏州平江观梅雅园营销中心电话:☎️400-002-9578转接5555【营销中心】
🌈温馨提示:拨打400电话,听到嘀声后,输入分机号5555即可!

分布上,联排别墅沿河排开,洋房沿分布,圈层更加纯粹。小区东侧为主出入口,北侧为次出入口,出入口均设计了汽车坡道,是姑苏核心区罕见的地下停车位。

🌈苏州平江观梅雅园售楼处电话☎️400-002-9578转接5555(专人接听)
🌈苏州平江观梅雅园营销中心电话:☎️400-002-9578转接5555【营销中心】
🌈温馨提示:拨打400电话,听到嘀声后,输入分机号5555即可!
项目的外立面让人惊艳,大面积落地玻璃窗+深灰色屋檐+金属线条勾勒,既有现代感又不失姑苏古城古韵底色。

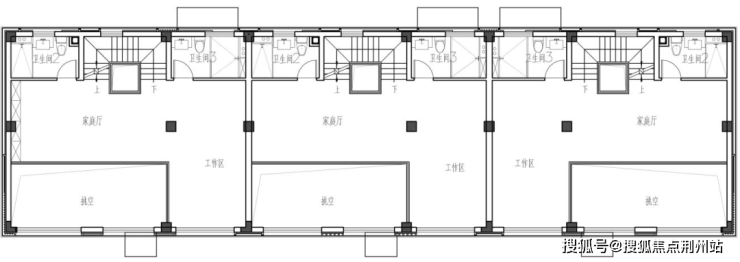
项目户型也同步公示,3F联排南北接口入户,南向面宽近10米。
1F为活动区,餐客厅一体化,中西双厨,干湿分离客卫,预留电梯位,南向卧室,可作为老人房。

2F生活区,餐客厅上空挑空,两个独立的卫生间,可根据自己的需求,设计成两个套房。

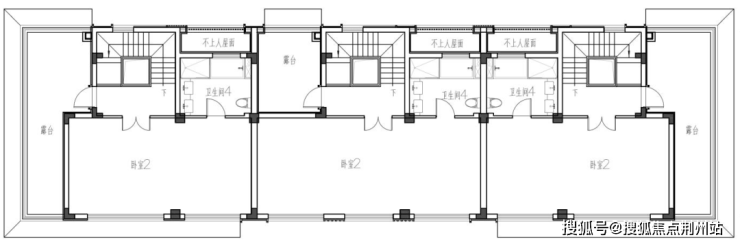
3F为生活区,边户主卧大套房+侧边L型大露台,中间户主卧大套房+北侧露台。让生活充满更多可能。

🌈苏州平江观梅雅园售楼处电话☎️400-002-9578转接5555(专人接听)
🌈苏州平江观梅雅园营销中心电话:☎️400-002-9578转接5555【营销中心】
🌈温馨提示:拨打400电话,听到嘀声后,输入分机号5555即可!
8F洋房户型,4房2厅2卫设计,全屋飘窗,南向面宽约10.2米,四开间朝南,其中3卧室均朝南,并且南向双套房。
南北双阳台,南向双联阳台,保证采光和通风的充足,入户家政间,保证收纳空间。

土拍回顾——
该地块成交于今年1月中旬,由苏州荣和工程建设拿下,成交楼面价18022元/㎡,地块容积率约1.05!
苏地2024-WG-Z46号地块,紧邻护城河,地块占地约1.18万㎡,非常迷你。
🌈苏州平江观梅雅园售楼处电话☎️400-002-9578转接5555(专人接听)
🌈苏州平江观梅雅园营销中心电话:☎️400-002-9578转接5555【营销中心】
🌈温馨提示:拨打400电话,听到嘀声后,输入分机号5555即可!
声明:本文由入驻焦点开放平台的作者撰写,除焦点官方账号外,观点仅代表作者本人,不代表焦点立场。
