苏州沁沄居官方售楼处电话(沁沄居)官方首页网站-沁沄居开发商营销中心-欢迎您-楼盘详情-最新价格-户型图-容积率@2026售楼处中心
扫描到手机,新闻随时看
扫一扫,用手机看文章
更加方便分享给朋友
苏州沁沄居售楼处电话:400-005-0788转6666(已认证)
苏州沁沄居开发商电话:400-005-0788转6666【售楼中心】
温馨提示售楼中心〢预约尊享1V1品鉴礼遇〢匠心钜制-恭迎品鉴〢
温馨提示本项目暂不接受临时到访,过来参观样板房请记得提前来电预约!
约1.02的容积率甪直史上最低,也是目前唯一孤品纯别墅,据规划全盘只有18栋3F联排别墅与8栋6F叠墅,别墅含量100%,是目前当之无愧的甪直墅王。
点击添加图片描述(最多60个字) 编辑
项目规划显示,社区将采用中轴对称式布局,两面环水,在北侧南厍路和西侧经六路上分别设置地库和人行出入口,定位为高端社区。
点击添加图片描述(最多60个字) 编辑

户型设计上,沁沄居也做了一些差异化亮点,比如联排标志性的“内外双庭院”设计,在当前苏州别墅新房市场较为稀缺。叠墅也都是大开间的平层化设计。
2#联排边户↓
一排四户,一层层高3.6米,二三层高3.3米
南向面宽大约12.7米
书房与客厅开间约8.1米
带一个大概7-8㎡的内庭院,可以自由发挥~
另外联排1F应该还带有一个约40㎡左右的外部庭院
点击添加图片描述(最多60个字) 编辑

15#联排边户↓
一排四户,一层高3.6米,二三层高3.3米
南向面宽约10米,客厅开间6.6米
同样是带一个大概7-8㎡的内庭院
另外带有一个约40㎡左右的外部庭院
点击添加图片描述(最多60个字) 编辑

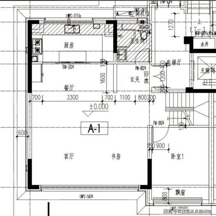
28#叠墅边户↓
一梯两户,一层高3.25米,二层高3.05米
南向面宽约10米,横厅开间6.6米
一层一厅,动静分离,格局很舒服
点击添加图片描述(最多60个字) 编辑
地段配套方面,项目坐落于吴中区甪直镇甫澄路西侧、南沙路南侧,周边生活配套成熟。教育资源上,3公里内涵盖叶圣陶实验小学、人民教育出版社附属实验小学及甪直甫里中学等19所幼儿园、2所小学、3所中学。
点击添加图片描述(最多60个字) 编辑
苏州沁沄居售楼处电话:400-005-0788转6666(已认证)
苏州沁沄居开发商电话:400-005-0788转6666【售楼中心】
温馨提示售楼中心〢预约尊享1V1品鉴礼遇〢匠心钜制-恭迎品鉴〢
温馨提示本项目暂不接受临时到访,过来参观样板房请记得提前来电预约!
免责声明(本文章所用信息图片来源于网络,如有侵权请联系本网站及时删除)
声明:本文由入驻焦点开放平台的作者撰写,除焦点官方账号外,观点仅代表作者本人,不代表焦点立场。
