苏州道壹号售楼处电话-苏州道壹号官网已认证-楼盘价格/户型/地址/前台电话/环境/配套/交房时间/售楼处电话
扫描到手机,新闻随时看
扫一扫,用手机看文章
更加方便分享给朋友
苏州道壹号售楼处电话:400-005-0788转6666(已认证)
苏州道壹号开发商电话:400-005-0788转6666【售楼中心】
温馨提示售楼中心〢预约尊享1V1品鉴礼遇〢匠心钜制-恭迎品鉴〢
温馨提示本项目暂不接受临时到访,过来参观样板房请记得提前来电预约!
项目打造8栋11F纯洋房产品,共296套!
点击添加图片描述(最多60个字) 编辑
招商永旺北项目鸟瞰图
最新产品消息,项目要做园区首个“抬板社区”,整个社区抬高3米。
打造「地下通勤层-地面交互层-私域生活层」的新加坡式高效且松弛,丰富且纯粹的立体生活体系与立体归家动线系统。
点击添加图片描述(最多60个字) 编辑
会所这块,规模约4000㎡。覆盖儿童成长乐园、太太会客厅、人文艺术、社交友好空间,全龄段日常休闲下楼即享,为园区改善提供更佳选择!
点击添加图片描述(最多60个字) 编辑

还有一个很实用的设计——地库直接连通钟南街地铁站。在苏州这种天气里,这个细节挺加分的。
打造约1万方亲水景观带,L型滨水河畔公园(申报中)。
点击添加图片描述(最多60个字) 编辑
项目位于钟南街东、苏州大道南。湖东核心区,旁边就是唐宁府、绿城云庐这些已经很有口碑的小区,居住氛围和圈层都很纯粹。
点击添加图片描述(最多60个字) 编辑
周边配套成熟度很高,低密洋房、核心地段、成熟配套、稀缺户型、再加上一个4000㎡的大会所……这些要素叠在一起,项目总共只有296套,抢手程度可以想象。
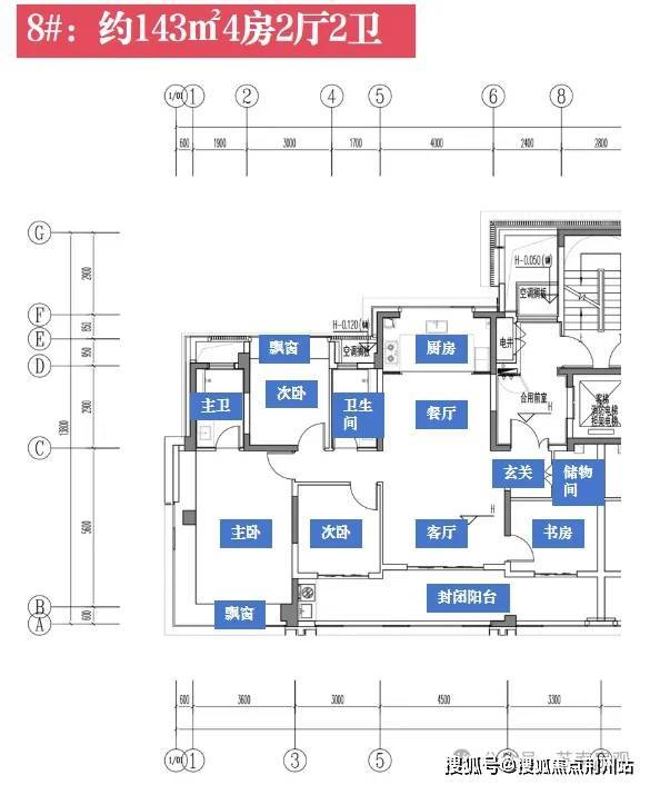
项目主打两个改善户型:约143㎡和178㎡。
约143㎡做的是4房2卫。子母门入户,玄关带储物间,南向面宽约15米,三个卧室朝南。
点击添加图片描述(最多60个字) 编辑
约178㎡是4房3卫,更适合对空间和私密性要求更高的家庭。南向面宽约18.5米,三卧朝南主卧西侧做了270°的L型大飘窗,直接看河景,这个视野在湖东还是比较稀缺的。
点击添加图片描述(最多60个字) 编辑
苏州道壹号售楼处电话:400-005-0788转6666(已认证)
苏州道壹号开发商电话:400-005-0788转6666【售楼中心】
温馨提示售楼中心〢预约尊享1V1品鉴礼遇〢匠心钜制-恭迎品鉴〢
温馨提示本项目暂不接受临时到访,过来参观样板房请记得提前来电预约!
免责声明(本文章所用信息图片来源于网络,如有侵权请联系本网站及时删除)
声明:本文由入驻焦点开放平台的作者撰写,除焦点官方账号外,观点仅代表作者本人,不代表焦点立场。
