武汉江夏区(五矿万境水岸)售楼处-楼盘详情-首页网站@武汉(五矿万境水岸)2025最新动态→销售动态→核心配套
扫描到手机,新闻随时看
扫一扫,用手机看文章
更加方便分享给朋友
五矿万境水岸售楼处电话▓:400-002-9578转接4444(售楼处已认证)
五矿万境水岸营销中心电话▓:400-002-9578转接4444【营销中心】
温馨提示:售楼中心〢预约尊享1V1品鉴礼遇〢匠心钜制-恭迎品鉴〢
免责声明:本文所用信息图片来源于网络,如侵权请联系本网站及时删除
五矿万境水岸
面积:174-214平
项目地址:武汉市江夏区山湖路五矿万境水岸
产品:联排,双拼,叠拼
产权:70年
容积率:2.4
绿化率:35%
物业费:高层2.6,别墅3.5
赠送面积:37-398平
车位比:1:1.4
栋数:28栋别墅组成
总户数:1180户
户型图
大双拼B1-B8
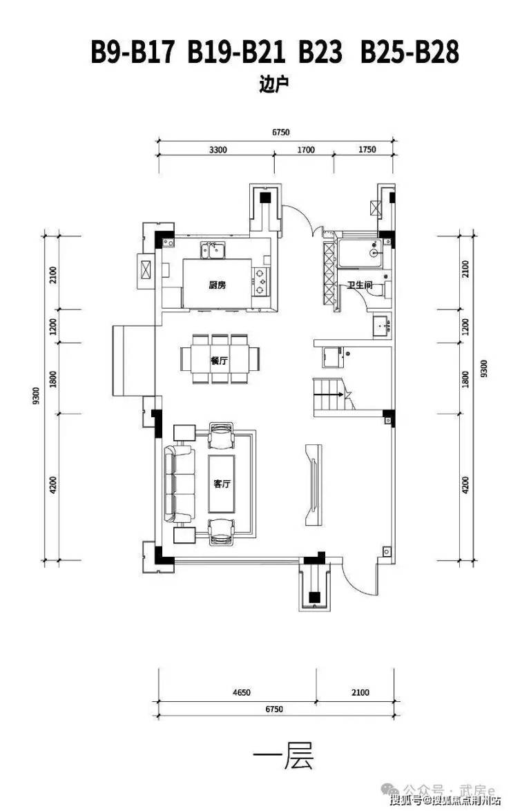
四联排B9-B17 B19-B21 B23 B25-B28
产品面积:双拼214.84 (7套)
联排 178.97(13套)、174.78(14套)
联排中间户:174平总价230万起,院子50-80平,实得使用率118%
联排边户:174平总价,总价290万起,院子100-150平,实得使用率118%
双拼:214平总价420万起,院子400平,实得使用率200%
周边配套
交通配套地铁:5号线和8号线;
自驾:三环线,四环线,白沙洲大道,黄家湖大道,武昌大道,文化大道;
商业配套2公里范围内有东南岸广场,驱车10分钟可达江夏沃尔玛、盒马生鲜;20分钟到达南湖商圈,经白沙洲大桥可达永旺商圈
医疗配套协和江南医院,武汉大学人民医院和省妇幼医院
教育配套启明星艺术幼儿园和康宁路小学,江夏大花岭小学和大桥中学等,另外一公里范围内还有规划中的黄家湖中学和黄家湖小学

五矿万境水岸售楼处电话▓:400-002-9578转接4444(售楼处已认证)
五矿万境水岸营销中心电话▓:400-002-9578转接4444【营销中心】
温馨提示:售楼中心〢预约尊享1V1品鉴礼遇〢匠心钜制-恭迎品鉴〢
免责声明:本文所用信息图片来源于网络,如侵权请联系本网站及时删除
声明:本文由入驻焦点开放平台的作者撰写,除焦点官方账号外,观点仅代表作者本人,不代表焦点立场。
