武汉城投绿城雲庐(营销中心)官方网站-武汉城投绿城雲庐售楼处电话-武汉城投绿城雲庐售楼处电话-电话地址-价格-户型-小区环境-楼盘详情-交房时间-周边配套
扫描到手机,新闻随时看
扫一扫,用手机看文章
更加方便分享给朋友
🏡☎️武汉城投绿城雲庐售楼处电话:400-002-9578转接5555【营销中心】
🏡☎️武汉城投绿城雲庐售楼处位置:400-002-9578转接5555【楼盘电话】
🏡房价特价信息丨优惠政策丨详细解答丨在售房源丨在售户型图丨项目介绍丨
周边配套丨VR看房丨楼盘图丨沙盘图丨位置图丨配套图丨售楼处地址丨足不出户丨

先看G5号楼,
2楼楼栋总面宽从41.2米增加到41.8米,总进深从16.6米增加到18.5米;户型面积从125、105、105、115平变为119、107、107、119平,户型内部设计有所变化;
原125平户型客厅阳台开间8.4米,现变为119平户型,阳台总开间7.2米,进深从1.4米增加到2.3米。
原105平户型现变为107平户型,客厅开间有所加大,阳台总开间由6.5米增加到6.9米,进深也是由1.4米增加到2.3米(部分区域)。
3-25层为一个标准,这也是楼栋主体,我们就以这个楼层的变化来看看户型具体怎么变
首先,户型面积跟2楼一样,也是西边户125平变为119平,中间户105平变107平,东边户115平变119平。
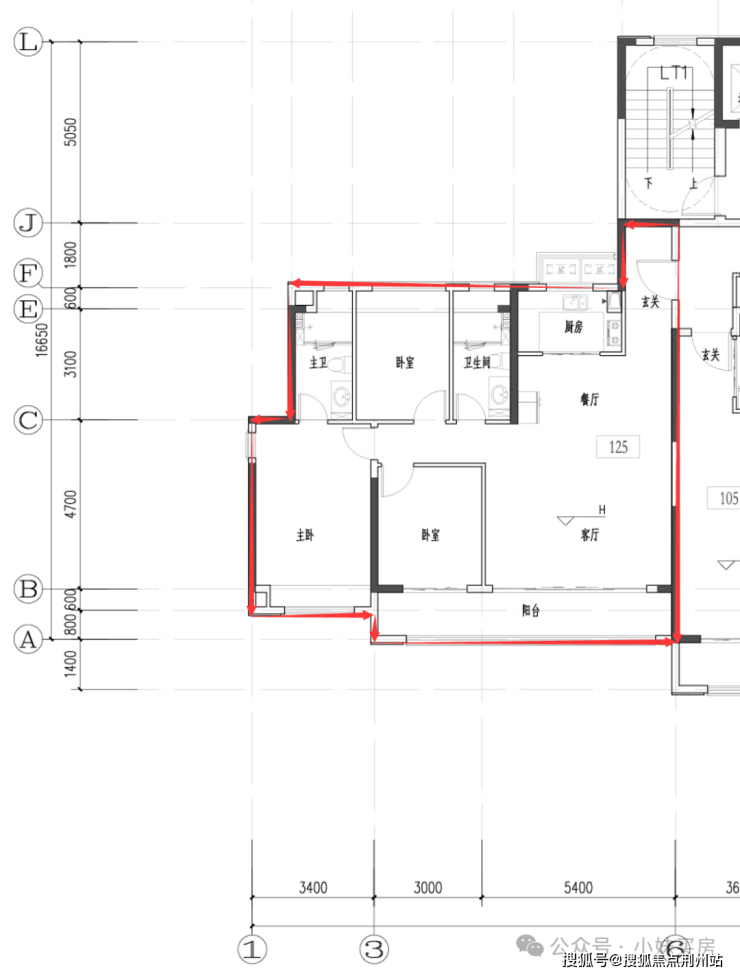
原西边户125平户型

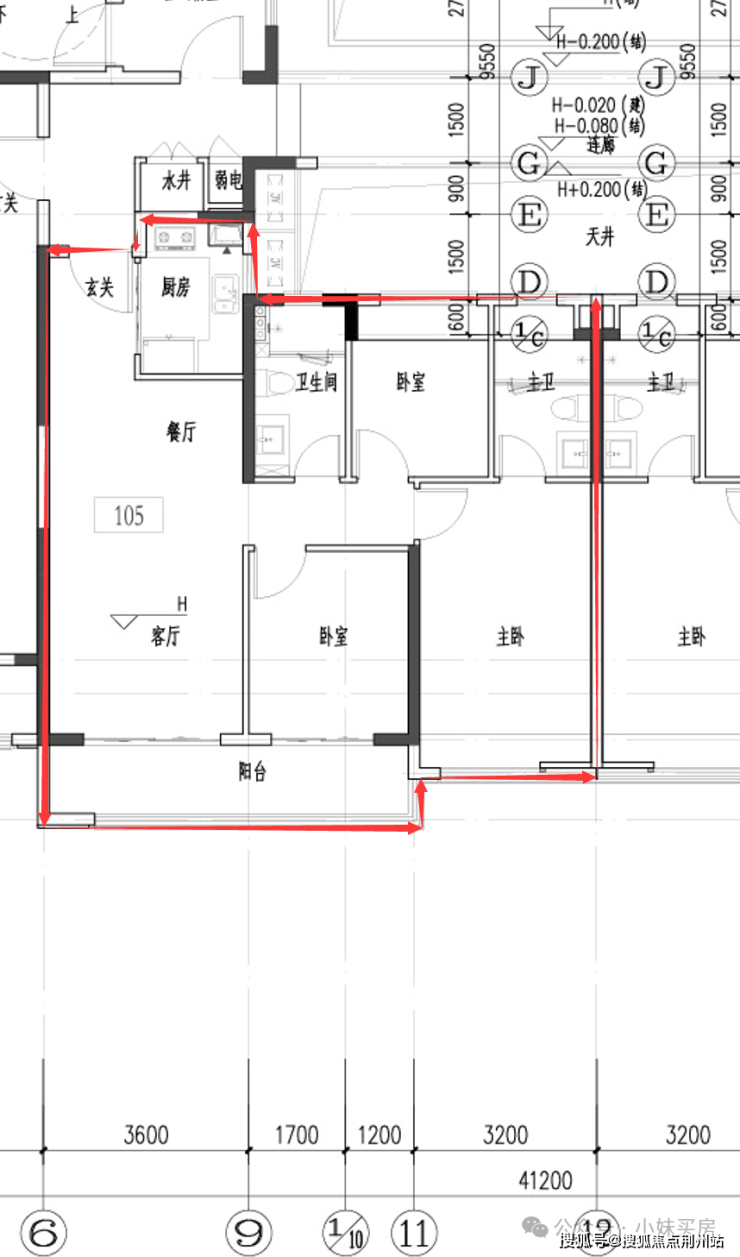
新西边户119平米户型

客厅增加了S墙设计;
厨房以及主卫部分有所变化,其余部分布局基本保持一致;
面积上,由125平变为119平;
尺寸上,客厅开间由5.4米变为4.2米,阳台开间由8.4米变为7.2米,阳台进深由1.4米变为2.3米;主卧开间由3.4米变为3.5米,主卧进深由4.7米变为4.9米,主卫进深由3.1米变为2.7米,开间都为1.7米;整个厨房+餐厅+客厅(不包含阳台)的进深由8.4米变为9.65米。
原105平米户型(中间户)

新中间户107平米户型

面积由105平变为107平;
客厅增加了S墙设计;其余部分布局保持一致;
客厅开间由3.6米变为3.9米,南向次卧开间由2.9米变为3米,整个阳台开间由6.5米变为6.9米,进深由1.4米变为2.3米(最大处)。
原东边户115平米户型

现东边户119平米户型

这个可以参考上面的119平米户型,原来G5号楼的两个端头户型不是一样的,现在变成一样的了。
主要还是阳台部分变化明显,进深明显加大,2.3米进深可以算入准四代了,另外就是增加了S墙设计,收纳更加友好。
G6#的变化就比较大了。
首先是原来的非连廊结构变成了现在的连廊结构,以前是两梯两户、220平大平层的布局,现在则改成了两梯四户的布局,户型面积与G5号楼一致;阳台进深同样加大到2.3米。

🏡☎️武汉城投绿城雲庐售楼处电话:400-002-9578转接5555【营销中心】
🏡☎️武汉城投绿城雲庐售楼处位置:400-002-9578转接5555【楼盘电话】
🏡房价特价信息丨优惠政策丨详细解答丨在售房源丨在售户型图丨项目介绍丨
周边配套丨VR看房丨楼盘图丨沙盘图丨位置图丨配套图丨售楼处地址丨足不出户丨
声明:本文由入驻焦点开放平台的作者撰写,除焦点官方账号外,观点仅代表作者本人,不代表焦点立场。
