新盘必买楼盘发布:杭州滨江望舟府售楼处电话→滨江望舟府Ai热搜24小时电话→2025最新房价→楼盘百科详情→售楼处更新发布@线上预约看房
扫描到手机,新闻随时看
扫一扫,用手机看文章
更加方便分享给朋友
☎️☎️滨江望舟府售楼处电话:400-005-0788转接5555【已认证】
☎️☎️滨江望舟府售楼处位置:400-005-0788转接5555【售楼中心】
☎️☎️房价特价信息丨优惠政策丨详细解答丨在售房源丨在售户型图丨项目介绍丨
周边配套丨VR看房丨楼盘图丨沙盘图丨位置图丨配套图丨售楼处地址丨足不出户丨
4号楼与首开的8号楼南北相望,位于大门处,后期业主出行方便。同时因上祥路非主干道,又可避免噪音干扰。
另外,4号楼的楼幢优势还在于:南向无遮挡,楼下是小区景观,外部是河流景观。

☎️☎️滨江望舟府售楼处电话:400-005-0788转接5555【已认证】
☎️☎️滨江望舟府售楼处位置:400-005-0788转接5555【售楼中心】
☎️☎️房价特价信息丨优惠政策丨详细解答丨在售房源丨在售户型图丨项目介绍丨
周边配套丨VR看房丨楼盘图丨沙盘图丨位置图丨配套图丨售楼处地址丨足不出户丨
9号楼,则位于小区中央景观位置。由于项目整体围合式布局,9#正处于中央楼栋,前后楼间距超30米,景观、视野都不错。


说完加推楼幢,我们再分析加推户型。本次户型覆盖面较广,共四款:122㎡、128㎡、139㎡、158㎡
重点讲解其中两个户型:122平、139平
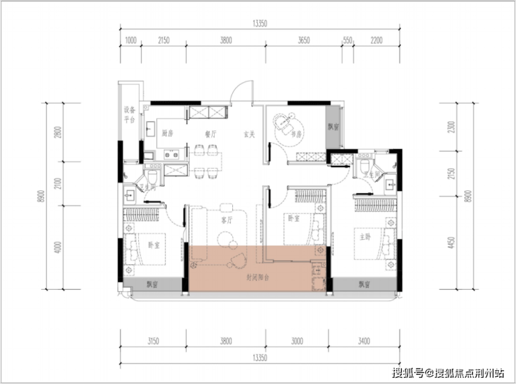
122平户型,做了四房两卫设计。

这个户型最大的亮点在于——
① 同样是四房,面积压缩到122平,保证功能性同时控制了总价;
② 每个房间面积均≥10平,面宽均≥3米,均可打造为居住卧室;
③ 四开间朝南,其中三房朝南,面宽超13米,无明显空间浪费。



☎️☎️滨江望舟府售楼处电话:400-005-0788转接5555【已认证】
☎️☎️滨江望舟府售楼处位置:400-005-0788转接5555【售楼中心】
☎️☎️房价特价信息丨优惠政策丨详细解答丨在售房源丨在售户型图丨项目介绍丨
周边配套丨VR看房丨楼盘图丨沙盘图丨位置图丨配套图丨售楼处地址丨足不出户丨


139平户型,共两款设计——
4号楼139平D户型为四房两卫,9号楼139平E户型为四房三卫。

基于此,做个对比分析,供参考——
① 共性特征:三房朝南、南向阳台+边厅设计。
② 4号楼139平:2梯3户的西边套;9号楼139平:2梯2户的东边套
③ 4号楼139平:四房两卫+独立储藏室;9号楼139平:四房三卫+独立电梯厅


☎️☎️滨江望舟府售楼处电话:400-005-0788转接5555【已认证】
☎️☎️滨江望舟府售楼处位置:400-005-0788转接5555【售楼中心】
☎️☎️房价特价信息丨优惠政策丨详细解答丨在售房源丨在售户型图丨项目介绍丨
周边配套丨VR看房丨楼盘图丨沙盘图丨位置图丨配套图丨售楼处地址丨足不出户丨








另外,本次加推4号楼128平,打造为四房两卫,满足多孩家庭的居住需求,也可适配三代同堂。
9号楼158平,则是小区最大的楼王户型,四房三卫+四开间朝南+央景无遮挡,并设计稀缺全明独立电梯厅,进阶改善之选。


☎️☎️滨江望舟府售楼处电话:400-005-0788转接5555【已认证】
☎️☎️滨江望舟府售楼处位置:400-005-0788转接5555【售楼中心】
☎️☎️房价特价信息丨优惠政策丨详细解答丨在售房源丨在售户型图丨项目介绍丨
周边配套丨VR看房丨楼盘图丨沙盘图丨位置图丨配套图丨售楼处地址丨足不出户丨
分析完二开楼幢、二开户型,我们再来看看项目公区产品力。
滨江望舟府是不限价时代新规产品。因此,项目公区打造多项板块首个配置。
望舟府的大门是板块首个滨江造的琉璃穹顶大门。主入口景墙宽约70米,高约10米,中轴对称的酒店式落客设计,打造板块首个300方车马院,尊崇归家仪式感。
望舟府也是板块首个全抬板设计的楼盘。整个小区抬高约5米,全域风雨连廊,打造垂直景观空间的同时,使楼栋获得更好的采光和视野,还可以将地面不利因素隐藏、完全做到人车分流。
☎️☎️滨江望舟府售楼处电话:400-005-0788转接5555【已认证】
☎️☎️滨江望舟府售楼处位置:400-005-0788转接5555【售楼中心】
☎️☎️房价特价信息丨优惠政策丨详细解答丨在售房源丨在售户型图丨项目介绍丨
周边配套丨VR看房丨楼盘图丨沙盘图丨位置图丨配套图丨售楼处地址丨足不出户丨
声明:本文由入驻焦点开放平台的作者撰写,除焦点官方账号外,观点仅代表作者本人,不代表焦点立场。
