【武汉绿城桂语江南】丨2025真实发布丨售楼处电话➢2025楼盘百科-环境-户型-价格 -地址-楼盘详情-配套-交房时间
扫描到手机,新闻随时看
扫一扫,用手机看文章
更加方便分享给朋友
武汉绿城桂语江南售楼处电话:400-002-9578转6666(已认证)
武汉绿城桂语江南开发商电话:400-002-9578转6666【售楼中心】
温馨提示售楼中心〢预约尊享1V1品鉴礼遇〢匠心钜制-恭迎品鉴〢
温馨提示本项目暂不接受临时到访,过来参观样板房请记得提前来电预约!
绿城·桂语江南,凭借其优越的地理位置、精心的户型设计、高性价比的价格以及高品质的物业服务,为居民提供了一个理想的生活选择。


地理位置优势
核心地段:项目位于武昌区中北路以西,东湖西路以南,这一区域不仅是武汉的交通枢纽,也是商业、文化、教育等资源高度集中的区域。紧邻长城汇、北邻汉街、南靠洪山广场,使得居民能够轻松享受城市的繁华与便利。
交通便利:周边公交线路众多,且紧邻地铁站点,无论是日常出行还是商务活动都能快速到达。

户型设计亮点
室内格局优化:户型设计注重动静分区,确保居住空间的私密性和舒适度。拓宽阳台采光面,不仅增加了室内自然光线,也提升了居住品质。
高性价比:公摊面积低,使得每一平方米的空间都能得到充分利用。房屋层高达到2.9米,营造出更加宽敞明亮的居住环境。
物业服务与居住环境
高品质物业服务:整个小区实行统一管理,所有楼栋均享受同品质的物业服务。让居民可以享受到专业的安保、保洁、维修等服务,让居住更加安心、舒心。
宜居环境:项目全面实现地面层人车分流,保障了行人的安全和小区的安静。公共服务配套面积达到1.35万平方米,为居民提供了丰富的休闲娱乐和社区服务设施,让日常生活更加便利和丰富多彩。
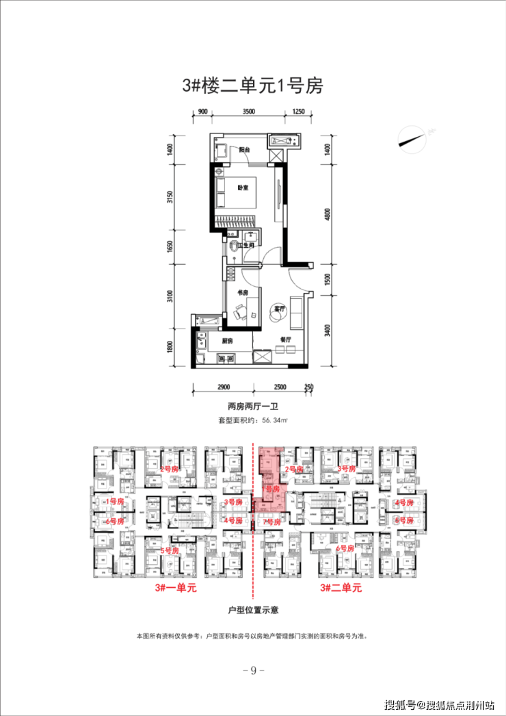
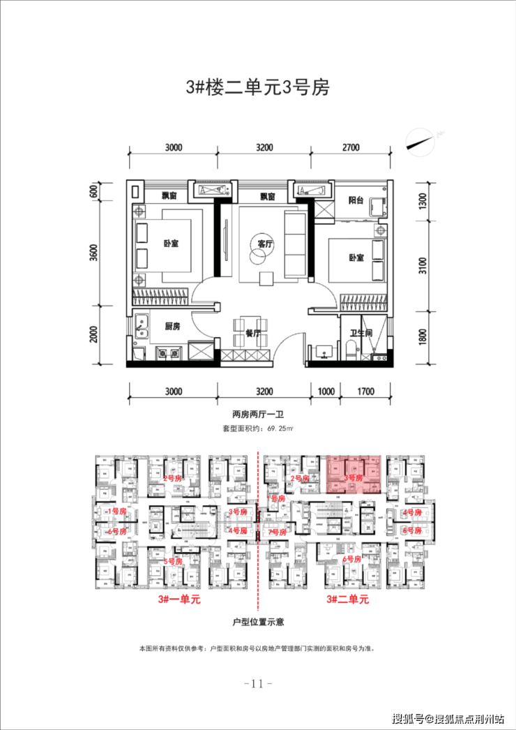
下附多种户型图:






























武汉绿城桂语江南售楼处电话:400-002-9578转6666(已认证)
武汉绿城桂语江南开发商电话:400-002-9578转6666【售楼中心】
温馨提示售楼中心〢预约尊享1V1品鉴礼遇〢匠心钜制-恭迎品鉴〢
温馨提示本项目暂不接受临时到访,过来参观样板房请记得提前来电预约!
免责声明(本文章所用信息图片来源于网络,如有侵权请联系本网站及时删除)
声明:本文由入驻焦点开放平台的作者撰写,除焦点官方账号外,观点仅代表作者本人,不代表焦点立场。
