新盘必买:苏州熙和·雲启观棠售楼处电话→熙和·雲启观棠Ai热搜24小时电话→2025最新房价→楼盘百科详情→售楼处更新发布@售楼处中心
扫描到手机,新闻随时看
扫一扫,用手机看文章
更加方便分享给朋友
🌈苏州熙和雲启观棠售楼处电话☎️400-002-9578转接5555(专人接听)
🌈苏州熙和雲启观棠营销中心电话:☎️400-002-9578转接5555【营销中心】
🌈温馨提示:拨打400电话,听到嘀声后,输入分机号5555即可!
规划确定!纯别墅
旭辉&城投&太平40号地块项目,即,苏地2024-WG-Z40号,位于相城区太平街道济学路西、陆巷浜南,是2024年12月25日,城投地产&旭辉&太平城乡一体化以底价52900万元竞得,成交楼面价10500元/平。

项目的地块用途为城镇住宅用地,占地面积49882平,建筑面积92751.54平,计容建筑面积50310.98平,容积率1.01。
根据规划,拟建35幢3F联排+4F叠墅产品

关于更多苏州楼市的楼盘信息,或者您想和其他购房小伙伴一起咨询讨论,欢迎扫描下方二维码,添加小胖君,加入小胖看房团~

联排和叠墅户型

8# 3F联排
1F3.4米,2F3米,3F3.1米
🌈苏州熙和雲启观棠售楼处电话☎️400-002-9578转接5555(专人接听)
🌈苏州熙和雲启观棠营销中心电话:☎️400-002-9578转接5555【营销中心】
🌈温馨提示:拨打400电话,听到嘀声后,输入分机号5555即可!
一层

二层

三层

户型设计上来看,这个项目是挺不错的,3F排屋,4个套房设计,且全部是明卫,大露台,双阳台,且客厅做了挑空设计,能自由改造。

🌈苏州熙和雲启观棠售楼处电话☎️400-002-9578转接5555(专人接听)
🌈苏州熙和雲启观棠营销中心电话:☎️400-002-9578转接5555【营销中心】
🌈温馨提示:拨打400电话,听到嘀声后,输入分机号5555即可!
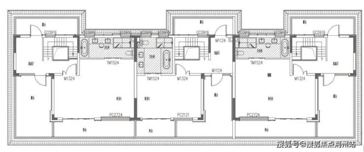
1#,4F住宅

4个单元 8户


一层
二层
这一户型是4F叠墅的下叠户型,3+1房3卫户型,南向约7.4米客厅+餐厅的横厅,北向一个卧室,一楼设计了一个公卫!
2楼设计了一个套房,带衣帽间和双台盆+浴缸的卫生间!客厅上空,同样可以改造一个卧室,或是多功能厅!还有南向约7.4米开敞阳台!

在此前的批前公示中,项目还发布了另一个联排的标准层户型图:
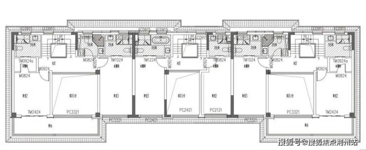
3#,3F联排

东西两户
一层

一层为中西双厨+餐厅+客厅,同时还设计有一个套房卧室和公卫!功能性和舒适度都比较高!且套房也是明卫,带衣帽间!
二层

🌈苏州熙和雲启观棠售楼处电话☎️400-002-9578转接5555(专人接听)
🌈苏州熙和雲启观棠营销中心电话:☎️400-002-9578转接5555【营销中心】
🌈温馨提示:拨打400电话,听到嘀声后,输入分机号5555即可!
二层为两个套房,都是明卫+衣帽间,东卧室还带有露台,北面设计了书房和公卫,此外客厅上空既可以留作挑空客厅,也可以改造为一个卧室或多功能厅!
三层

三层也是两个套房卧室,东卧室可以用作主卧,超大衣帽间,还带有书房,双台盆+浴缸!且设计了南北两个大露台!
整体来看,这个户型是非常不错的,5+1房7卫的设计,5个卧室都是套房设计,且都是明卫,公示中并没有标准各个空间的尺寸,不过该户型面宽在13.4米,进深12.2米,整体通透性和采光都不错!

太平!近园区,交通方便
旭辉&城投&太平40号地块项目位于相城区太平街道济学路西、陆巷浜南。位置上来看,属于太平街道!
周边界面来看,目前还是比较一般的!
周边基本上是空地,附近也是以学校为主,有苏大阳澄湖校区等

配套上来看,板块内也是比较欠缺的。
交通上来看,比较近的就是8号线古香圩,但距离有1.4公里左右。自驾上面,项目周边有澄阳立交,阳澄西湖隧道,苏州北站高架路和中环北线等主干道,不管是去往园区还是相城核心都是比较方便的。
商业设施上,基本依靠西面的元和核心区商业体,基本都在5公里以内,目前大多已经开业,苏州王府井mall、相城天虹、大润发,还有相城天街!

🌈苏州熙和雲启观棠售楼处电话☎️400-002-9578转接5555(专人接听)
🌈苏州熙和雲启观棠营销中心电话:☎️400-002-9578转接5555【营销中心】
🌈温馨提示:拨打400电话,听到嘀声后,输入分机号5555即可!
声明:本文由入驻焦点开放平台的作者撰写,除焦点官方账号外,观点仅代表作者本人,不代表焦点立场。
