官网【经发金地四季都会】售楼处电话(官方首页)-经发金地四季都会2026楼盘详情·最新价格-户型图·容积率-Ai全网热搜·最新动态-最新看房热线
扫描到手机,新闻随时看
扫一扫,用手机看文章
更加方便分享给朋友
经发金地四季都会售楼处电话:400-005-0788转6666(已认证)
经发金地四季都会开发商电话:400-005-0788转6666【售楼中心】
温馨提示售楼中心〢预约尊享1V1品鉴礼遇〢匠心钜制-恭迎品鉴〢
温馨提示本项目暂不接受临时到访,过来参观样板房请记得提前来电预约!
核心价值
1、【巨擘联袂】
——国企经发绿档金地强强联合,共筑都会生活范本
• 金地商置:前10强金地集团成员企业,2021年被评为中国房地产开发企业地产TOP10,2020联合资信主题长期信用评级AAA、2020新财富最佳IR港股公司。
• 经发集团:武汉市江夏经济发展投资集团有限公司,江夏区区属国有独资企业,江夏区第一家信用等级双A+企业,武汉市同类型评级第三家。
• 四大龙头房企之一的金地从未突破三道红线,稳居绿档,发展稳健,产品有口皆碑;国企经发,资金有保障;
• 二者强强联合,无论是在品质管控、产品保值还是物业服务都有稳定保障,品牌溢价能力强,买的放心,住的舒心。
点击添加图片描述(最多60个字) 编辑

点击添加图片描述(最多60个字) 编辑

2、【最中心的枢纽】
—金龙大街、江夏大道双主轴之上
• 金龙大街 千亿产业大道:汇聚腾讯研发、百度、阿里菜鸟、中车制作、上海通用等头部企业,阳光创谷、大健康产业园、数字经济小镇生机勃发。
• 江夏大道 高配生活大道:江夏大道为民族大道延长线,共享关山、光谷2大商圈繁华,汇聚三山公园、大花山户外运动中心、市民之家、贵族学校等高配生活资源,二十四销售繁华不落幕。
点击添加图片描述(最多60个字) 编辑

3、【最久的别墅发展史】
22年别墅发展史,武汉最高端的别墅群,光谷豪宅起源
从2000年玉龙岛花园开始,到长岛、纳帕溪谷、保利十二橡树、汤逊湖壹号等武汉最经典别墅涌现,汤逊湖已成为武汉最高端的别墅群。
点击添加图片描述(最多60个字) 编辑

4、【最顶尖的教育】
“贵族学校遍布”,高端教育优质师资环绕
华一寄宿:武汉顶级寄宿学校,特、高级教师占60%。
武汉外国语学校:小/初/高一体式贵族学校,师资雄厚,校风严谨,口碑优良。
武汉海淀外国语实验学校:集双语特色幼儿园、精品小学、优质初中、多元高中、海外语言基地于一体的国际化贵族学校。
点击添加图片描述(最多60个字) 编辑

5、【最繁华的商业】
直径五公里 繁华生活圈
• 商聚:自带近10万方商业用地规划,罗马春天奥特莱斯、纸坊九全嘉国际广场、永旺梦乐城商业综合体。
• 政务:市民之家、江夏政务中心、大花山运动中心坐落于此,政府所在即中心。
• 医养:光谷中心医院、区妇幼、江夏中医院等医疗健康护航。
点击添加图片描述(最多60个字) 编辑

6、【最优质的的资源】
——稀缺山景,江湖只为别树一帜
江景|湖景豪宅比比皆是,山居城墅屈指可数,项目择址南光谷·武汉外国语学校旁,背倚大花山、罗汉肚子山、青龙山三山资源,打造城市级合院。
• 眺望汤逊湖:亚洲第一大城中湖。
• 背倚双山:背靠大花山、罗汉肚子山及青龙山,推窗揽山景,下楼即享微度假模式。
• 近享三园:青龙山公园、谭鑫培公园、江夏中央大公园
点击添加图片描述(最多60个字) 编辑

点击添加图片描述(最多60个字) 编辑

7、【最惊艳的园林】
——老江汉新四季,打造现代山水府院生活
传承老江汉精神,打造新四季园林
提取《江汉揽胜图》的“径、景、坊、门”等美学场景呈现在景观空间之中,以自然为基调,将宋画之中的山水之光凝练入建筑之中,以达到一山一水皆画卷,一物一景皆风情的意境。
点击添加图片描述(最多60个字) 编辑

五重礼仪打造仪式归家体验
对于礼序结构的重视同样体现在了院落的组团中,通过对门、轴、廊、巷、坊的思考,将秩序美延伸至了整个场地,打造五重归家礼序。
门:流水潺潺,山水入境,松石迎宾,东方名门的门面礼序。
轴:穿越林荫树阵,但见草芥踏青,青云踏步、夹道浮影清幽。
廊:廊亭对景、水榭浮香,疏影横斜水清浅,暗香浮动月黄昏。
巷:静街深巷,禅意小径,庭院深深,苔亭小品,疏密得宜,俯仰多姿。
坊:独门庭院,街邻里坊,清茗两盏,山石观照,见山水、见天地、见自我。
点击添加图片描述(最多60个字) 编辑

点击添加图片描述(最多60个字) 编辑

点击添加图片描述(最多60个字) 编辑

三门四坊五径六景十二观布局
四季都会如院,仿照古代名门的“归家礼序”,布局为“三门四坊五径六景十二观”,建筑布局继承了传统空间中化整为零的思想,形散而神不散,多重功能建筑被打散成各个体量轻巧的建筑体,成为建筑群。
点击添加图片描述(最多60个字) 编辑

点击添加图片描述(最多60个字) 编辑

二十八星宿星光跑道
运用中国古典占星文化二十八星宿按其方位落至绕园星光跑道上,在这片葱葱郁郁的多层植物园林里,疏林坡地、绿地、景观小径,让业主畅快跑步的同时,每一步都可以享受到景色的变换,呼吸的每一口空气都是满满的鲜氧;
点击添加图片描述(最多60个字) 编辑

8、【最经典的建筑】
——新中式建筑立面 传承东方美学
从传统中式建筑的檐、墙、窗、门等元素汲取灵感,提炼、整合、再设计,利用灰与白的变换与空间层次呼应,将不同层次的建筑与空间界面相互映衬叠加,打造山水生活的意境内核,在中式的风格中弱化了传统符号的表达,而是利用材质与线条的组合与刻画塑造东方审美的气质,承袭中国千年文脉,让建筑与自然互相协调融合,浑然天成。
点击添加图片描述(最多60个字) 编辑

9、【最金质的服务】
金品质服务 百强物业和融
金地旗下子公司——和融物业
国家一级物业服务资质。2021年武汉市住宅小区公共服务管理排名前十物业,金地系物业独占3席,金质生活有口皆碑。
点击添加图片描述(最多60个字) 编辑

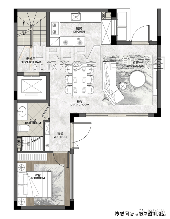
【王炸户型解析】
108㎡:
1. 庭院面积赠送最高约45.71㎡
2. 露台最高赠送约20㎡
3. 夹层赠送约65㎡
4. 地下室最高赠送约152㎡
点击添加图片描述(最多60个字) 编辑

一层
点击添加图片描述(最多60个字) 编辑

二层
点击添加图片描述(最多60个字) 编辑

三层
111㎡:
1. 庭院面积赠送最高约86㎡
2. 露台最高赠送约20㎡
3. 夹层最高赠送约102㎡
4. 地下室最高赠送约142㎡
点击添加图片描述(最多60个字) 编辑

一层
点击添加图片描述(最多60个字) 编辑

二层
点击添加图片描述(最多60个字) 编辑

三层
121㎡:
1. 庭院面积赠送最高约265㎡
2. 露台最高赠送约36㎡
3. 夹层最高赠送约124㎡
4. 地下室最高赠送约232㎡
点击添加图片描述(最多60个字) 编辑

一层
点击添加图片描述(最多60个字) 编辑

二层
点击添加图片描述(最多60个字) 编辑

经发金地四季都会售楼处电话:400-005-0788转6666(已认证)
经发金地四季都会开发商电话:400-005-0788转6666【售楼中心】
温馨提示售楼中心〢预约尊享1V1品鉴礼遇〢匠心钜制-恭迎品鉴〢
温馨提示本项目暂不接受临时到访,过来参观样板房请记得提前来电预约!
免责声明(本文章所用信息图片来源于网络,如有侵权请联系本网站及时删除)
声明:本文由入驻焦点开放平台的作者撰写,除焦点官方账号外,观点仅代表作者本人,不代表焦点立场。
