宁波慈溪凤启潮鸣售楼处(宁波凤启潮鸣)首页网站-宁波凤启潮鸣营销中心欢迎您-楼盘详情·最新价格-户型图-容积率@2025.11.5售楼处AI热搜
扫描到手机,新闻随时看
扫一扫,用手机看文章
更加方便分享给朋友
宁波凤启潮鸣售楼处电话:400-002-9578转9999(已认证)
宁波凤启潮鸣TEL:售楼处电话:400-002-9578转9999(售楼中心)
宁波凤启潮鸣售楼处电话:400-002-9578转9999(认证营销中心)
免责声明:(本文章所用信息图片来源于网络,如有侵权请联系本网站及时删除)
昨晚,绿城·慈溪城投新城河32-A地块案名正式官宣。不出所料就是“凤起潮鸣”。这是绿城即东部新城凤起潮鸣后,在宁波的第二座凤起潮鸣(全国第六座)。
据悉,凤起潮鸣属于绿城“T档产品线”,是顶尖收藏级豪宅,定位为“时代传世之作”。
凤起潮鸣位于慈溪城市新中心新城河东岸,属于豪宅圈层。
凤起潮鸣地上总建约16万平方米,共582户,属于大盘项目。
项目由14-17F高层、3F联排(3-4联排)和一个邻居中心组成组成。高层面积200-350平,联排210-499平。
高层347/296平户型过程稿如下
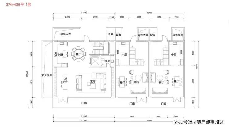
联排374+220+210过程稿
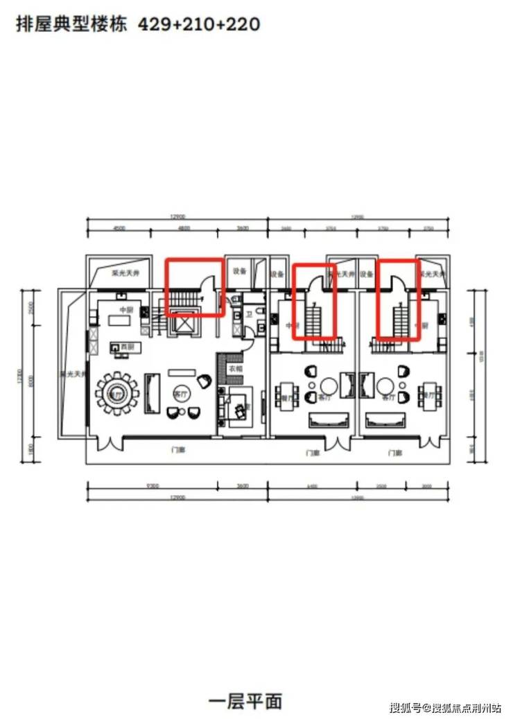
联排429/210/220平户型过程稿
户型过程稿仅供参考,具体以实际为准(图自网络)
这210/220平南向面宽实在是太窄了。之所以这么设计想法看着很聪明,进可攻退可守。210平低总价,可以面向承价能力低的客户。同时也可以两套打通430平,卖给高承价客户。不过对430平的客户来说,这户型就不好了。
联排建筑效果
公区配套
园林景观方面,高层区域有做下沉式庭院。高层之间有用景观连廊相连,不过这个连廊顶部是镂空的。高层一楼全部为架空层。
别墅外立面材料为玻璃、铝板、石材。高层外立面材料为铝板、涂料。
项目地处慈溪城市新中心--新城河板块。而新城河东岸更是核心中的核心,是慈溪当之无愧的顶级豪宅区。
凤起潮鸣的地段绝对是核心的。但在产品设计上有点配不上“时代传世之作”的称号。
首先就是容积率全部做足后,导致整个项目建筑很密,无论是高层还是联排,舒适度有所下降。真要是“传世之作”,应该主动降低容积率。
宁波凤启潮鸣售楼处电话:400-002-9578转9999(已认证)
宁波凤启潮鸣TEL:售楼处电话:400-002-9578转9999(售楼中心)
宁波凤启潮鸣售楼处电话:400-002-9578转9999(认证营销中心)
免责声明:(本文章所用信息图片来源于网络,如有侵权请联系本网站及时删除)
声明:本文由入驻焦点开放平台的作者撰写,除焦点官方账号外,观点仅代表作者本人,不代表焦点立场。
